
Boom Living GmbH
Frau Mariana Hiebl
067 ···
Nr. anzeigenPreise & Kosten
Provision für Käufer
3% des Kaufpreises zzgl. 20% USt.
Lage
Die Mayssengasse 27/8 im 17. Wiener Gemeindebezirk Hernals bietet eine attraktive Wohnlage mit hervorragender Infrastruktur und Verkehrsanbindung.
Lagebeschreibung:
Die Mayssengasse befindet sich in einem ruhigen Wohnviertel von Hernals, das durch seine zentrale Lage und ausgezeichnete Erreichbarkeit besticht. Die...
Die Wohnung
Kategorie
Terrassenwohnung
Wohnungslage
3. Geschoss
Wohnanlage
Energie & Heizung
Warum sehe ich diese Anzeige? – Du siehst diese Anzeige basierend auf Ihrer Navigation auf unserer Website und den Suchkriterien, die du verwendet hast.
Heizwärmebedarf (HWB)
58,40 kWh/(m²·a)
Gesamtenergieeffizienz (fGEE)
0,56
Weitere Energiedaten
Heizungsart
Fußbodenheizung, Luft-/Wasser-Wärmepumpe
Details
Objektbeschreibung
Willkommen in einem außergewöhnlichen Wohnprojekt im Herzen des 17. Bezirks!
In der Mayssengasse, 1170 Wien, entsteht ein hochwertig revitalisiertes Wohnhaus, das historischen Altbauflair mit modernstem Wohnkomfort vereint.
Zehn stilvolle Wohneinheiten - sechs im charmanten Altbestand, zwei moderne...
Weitere Informationen
Stichworte
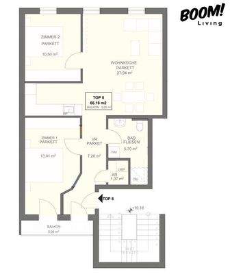
Fahrradraum, Nutzfläche: 67,70 m², Gesamtfläche: 69,23 m², Freifläche: 3,05 m², Anzahl der Badezimmer: 1, Anzahl der separaten WCs: 1, Anzahl Balkone: 1, Balkon-Terrassen-Fläche: 3,05 m², Bundesland: Wien, 6 Etagen, modernisiert: 2025
Anbieter der Immobilie
Boom Living GmbH
Kärntner Straße 12, 1010 WIEN
Online-ID: 2mmzj5c
Referenznummer: OBGC20251117211348801238f3e0087
Finde Angebote wie dieses
Günstige Immobilienfinanzierung einfach online berechnen
Persönliches Angebot berechnenWarum sehe ich diese Werbung? – Du siehst diese Werbung basierend auf Deiner Navigation auf unserer Website und der von Dir verwendeten Suchkriterien.
Diese Werbung wird bezahlt von durchblicker
Werbung melden
Hier geht es zu unserem Impressum, den Allgemeinen Geschäftsbedingungen, den Hinweisen zum Datenschutz und nutzungsbasierter Online-Werbung.