
Covivio Immobilien GmbH
Herr Nikolaus Lechner
030 ···
Nr. anzeigenPreise & Kosten
in Warmmiete enthalten
Kaution
17.970,00
Provision für Mieter
provisionsfrei
Warum sehe ich diese Anzeige? – Du siehst diese Anzeige basierend auf Ihrer Navigation auf unserer Website und den Suchkriterien, die du verwendet hast.
Lage
Im näheren Umfeld sind alle nötigen Einrichtungen des täglichen Bedarfs wie Ärzte, Schulen, Kindergärten und Einkaufsmöglichkeiten zu finden.
In unmittelbarer Nähe befindet sich der U-Bahnhof "Ullsteinstraße" (U6), womit man nur knapp 30 Minuten vom Potsdamer Platz entfernt ist. Die A100 ist nur wenige Minuten mit dem...
Die Ladenfläche
Kategorie
Laden
Baujahr
1966
Bezug
ab sofort
Erdgeschoss
Energie & Heizung
Warum sehe ich diese Anzeige? – Du siehst diese Anzeige basierend auf Ihrer Navigation auf unserer Website und den Suchkriterien, die du verwendet hast.
Wärme
Energieausweistyp
Verbrauchsausweis
Gebäudetyp
Nicht-Wohngebäude
Baujahr laut Energieausweis
1966
Wesentliche Energieträger
GAS
Gültigkeit
seit 25.06.2024
Endenergieverbrauch (Wärme)
170,90 kWh/(m²·a)
Weitere Energiedaten
Energieträger
Gas
Details
Objektbeschreibung
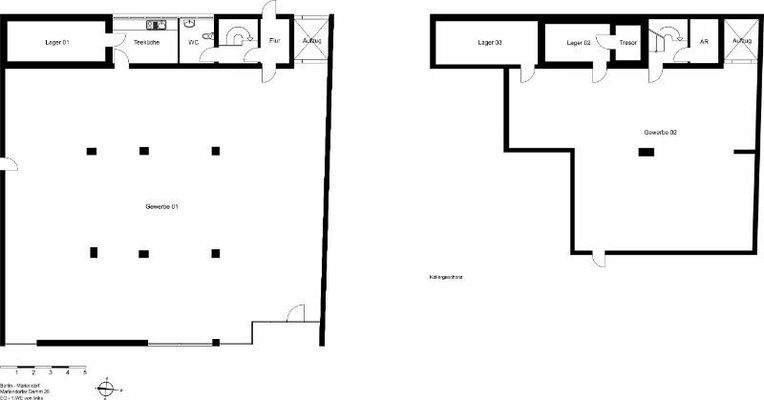
Das Gebäude am Mariendorfer Damm 28 wurde im Jahr 1966 errichtet. Die ca. 326m² befinden sich im Erdgeschoss des Wohn- und Geschäftshauses. Die Fassade des Objektes wurde bis Anfang 2019 saniert. Im Kellergeschoss befinden sich weitere 160m² Lagerfläche, die direkt mit der Gewerbeeinheit verbunden sind.
Ausstattung
Auf einen Blick:
- lange Schaufensterfront
- zentrale Lage an der U6 Ullsteinstraße
- anmietbare Stellplätze nach Verfügbarkeit
Preisinformation
Nettokaltmiete: 5.990,00 EUR
Weitere Informationen
Sonstiges
Covivio - eines der größten Immobilienunternehmen in Europa überwindet Grenzen, möchte überall den gleichen, bestmöglichen Service bieten und diesen auch in Zukunft auf die sich ändernden Bedürfnisse ihrer Kund:innen ausrichten. In Deutschland besitzt und bewirtschaftet Covivio über 41.000 Wohnimmobilien in den...
Dokumente
Anbieter der Immobilie

Covivio Immobilien GmbH
Essener Straße 66, 46047 Oberhausen
Online-ID: 2mn2g5q
Referenznummer: C607.017392-021
Finde Angebote wie dieses
Hier geht es zu unserem Impressum, den Allgemeinen Geschäftsbedingungen, den Hinweisen zum Datenschutz und nutzungsbasierter Online-Werbung.