
Crozilla.com
Luva Real Estate
+38 ···
Nr. anzeigenPreise & Kosten
Provision für Käufer
Bitte beachte, das Angebot kann bei Vertragsabschluss die Zahlung einer Provision beinhalten. Weitere Informationen erhältst Du vom Anbieter.
Die Wohnung
Wohnungslage
1. Geschoss
Details
Objektbeschreibung
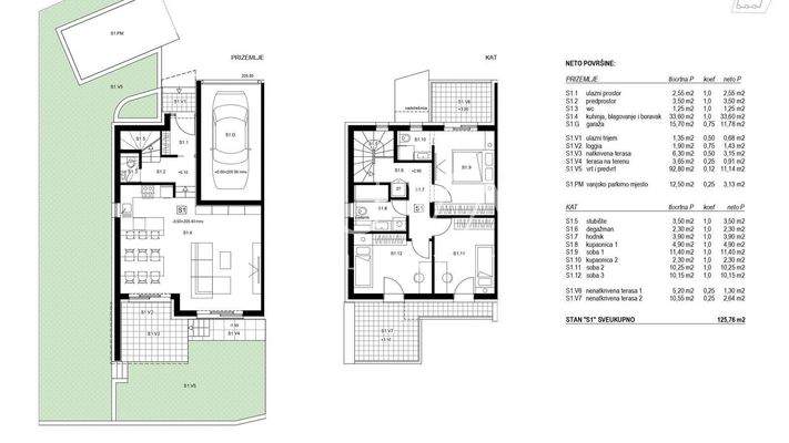
Zum Verkauf steht eine Wohneinheit mit der Bezeichnung S1, Teil eines Projekts mit 12 Reihenhäusern/-wohnungen in Perjavica.
Sie besteht aus zwei Etagen mit zugehöriger Garage, Außenstellplatz, Terrassen und Gärten.
Erdgeschoss: Wohnzimmer mit offener Küche und Essbereich, Eingangsbereich und Vorraum, Gäste-WC...
Weitere Informationen
Stichworte
Grundstücksfläche: 240,00 m², Anzahl der Schlafzimmer: 4, Anzahl der Badezimmer: 3
Anbieter der Immobilie
Crozilla.com
Nova cesta 60, 10000 ZAGREB
Online-ID: 2mn3v57
Referenznummer: 18542339_0
Finde Angebote wie dieses
Hier geht es zu unserem Impressum, den Allgemeinen Geschäftsbedingungen, den Hinweisen zum Datenschutz und nutzungsbasierter Online-Werbung.