

Wohnung zum Kauf215000 €2.530 €/m²3 Zimmer • 85 m² • 1. Geschoss • frei ab sofort
215000 €
2.530 €/m²
3 Zimmer • 85 m² • 1. Geschoss • frei ab sofort
Großzügig & helle 3-Zimmer-Wohnung (barrierefrei) mit sonnigem Balkon in zentraler Lage
Merkmale
- Bezug: sofort
- 1. Geschoss
- Einbauküche
- Personenaufzug
- Kelleranteil
- Garage
- Gäste-WC
- Balkon
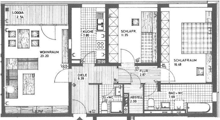
Grundrisse
Grundrisse
1 / 1
Realisiere Dein Projekt
Bausubstanz und Energie
Der Anbieter hat keine Informationen zum Energieverbrauch bereit gestellt.
- Baujahr1973
- EnergieträgerFernwärme
Preisdetails
Kaufpreis
215000 €
2.529,71 €/m²
Provision für Käufer
3,57 % inkl. der gesetzlichen Mehrwertsteuer.
Weitere Preisinformationen
Der Kaufpreis beträgt 215.000,-- EUR.
Die Käuferprovision beträgt 3,57 % inkl. der gesetzlichen Mehrwertsteuer, fällig nach Beurkundung eines notariellen Kaufvertrages. Mit dem Eigentümer dieser Immobilie wurde ein provisionspflichtiger Makleralleinauftrag in gleicher Höhe abgeschlossen (gemäß § 656c BGB).
Die Käuferprovision beträgt 3,57 % inkl. der gesetzlichen Mehrwertsteuer, fällig nach Beurkundung eines notariellen Kaufvertrages. Mit dem Eigentümer dieser Immobilie wurde ein provisionspflichtiger Makleralleinauftrag in gleicher Höhe abgeschlossen (gemäß § 656c BGB).
Geschätzte Gesamtkosten
237.725 €1
Kaufpreis
215.000 €
Kaufnebenkosten
22.725 €
2Notarkosten (1,5%)
3.225 €
Grunderwerbsteuer (5%)
10.750 €
Provision für Käufer (3,57%)
7.675 €
Grundbucheintrag (0,5%)
1.075 €
1Der angezeigte Wert ist eine automatisch berechnete Schätzung von immowelt.
2Bei den Angaben handelt es sich um ortsübliche Werte. Individuelle Kosten können abweichen.
Lage

Empelde, Ronnenberg (30952)
Der Anbieter hat die genaue Adresse nicht freigegeben
Weitere Informationen
Weitere Services
Lust auf eine Besichtigung?
Eine Frage zur Immobilie?
Über den Anbieter
LWK Vermittlungs- und Handels GmbHMaklerbüro
Keine Telefonnummer hinterlegt
An der Christuskirche 16, 30167 Hannover
6 Jahre Partnerschaft
Keine Telefonnummer hinterlegt
Online-ID: 2mn445s
Referenznummer: W 6657

LWK Vermittlungs- und Handels GmbH
Bewertung: 4,5 von 5 Sternen
Wie zufrieden bist du mit dieser Seite (nicht mit der Immobilie selbst)?

