Version: 8.25.2Navigation überspringen
team19 Immobilien GmbH
1.050 €
3 Zimmer  •  66,9 m² Verkaufsfläche

Ladenfläche zur Miete
1.050 €
3 Zimmer  •  66,9 m² Verkaufsfläche

Gepflegtes Geschäftslokal in 7051 Großhöflein: ca. 140 m² NFL, unterkellert, großer Verkaufsraum, Büro, Garage, Parkplatz & mehr - JETZT ANFRAGEN

Das ideale Geschäftslokal für Ihren Einzelhandel ist hier in Großhöflein, ein Nachbarort der Landeshauptstadt Eisenstadt. Mit ca. 140 m² Verkaufs-und Bürofläche, inkl. Küchen-und Sanitärbereich und einer gepflegten gediegenen Ausstattung bekommen Sie Top-Komfort. Der klimatisierte Verkaufsraum mit rund 67m² und großen Fensterflächen, beinhaltet eine moderne Schauküche inkl. Geräten und diverser Einbauten sowie einen Schwedenofen. Angrenzend zum Verkaufsraum wurde eine Gastroküche inkl. Absaugung und diversen Küchengeräten integriert. Im hintersten Bereich des Gebäudes finden wir zwei Büros, die über Be-und Entlüftungsanlage mit Heizfunktion verfügen. Zusätzlich bietet das Objekt einen Vollkeller, der zusätzlich vom Innenhof begehbar ist, mit ebenfalls ca. 140m², eine Garage, einen überdachten Stellplatz und einen uneinsehbaren Innenhof. Beheizt wird das Objekt mittels Elektroheizung, Holzscheitofen und Klimaanlage. Elektroinstallation wurde größtenteils neu gemacht!

Gute Verkehrsanbindung ist durch Bus und Bahn gewährleistet. Der nächste Park & Ride Bahnhof liegt nur 5 Fahrminuten entfernt.

Für das Geschäftslokal bezahlen Sie eine angemessene Miete inkl. BK und Ust. von 1.440,00 € pro Monat. Sie werden bald feststellen, dass Ihnen dieses Geschäftslokal viele Möglichkeiten bietet. Derzeit wird das Lokal als Vinothek betrieben, jedoch sind verschiedenste Szenarien möglich, wie Gastro-, Büro-, Fitness- und Lagernutzung. Eine Teilvermietung des Objektes ist ebenfalls möglich. Mit diesem Schnäppchen erhalten Sie eine sehr gute Ausstattung, bequemen Zugang und eine angenehme Umgebung.

Nutzen Sie die einmalige Gelegenheit und eröffnen Sie Ihren Einzelhandel in diesem gepflegten Geschäftslokal in Großhöflein, Burgenland. Sie werden es nicht bereuen!

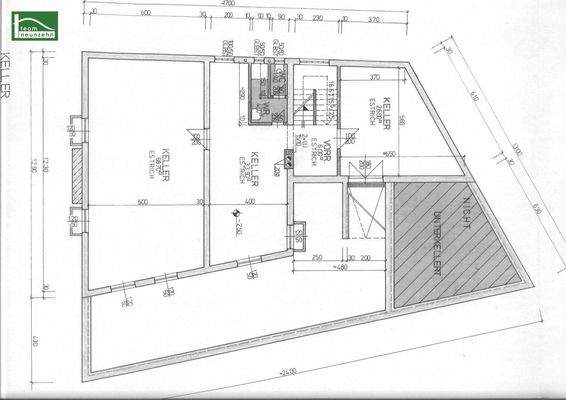
Die Raumaufteilung:

* Verkaufsraum: 66,90 m²
* Gastroküche: 21,40 m²
* Abstellraum: 6,00 m²
* Toiletten: 5,30 m²
* Vorraum: 11,80 m²
* 2 Büros: 26,00 m²
* Keller: 140 m²
* Garage: 34,40 m²

Mietpreis und Betriebskosten:

* Miete: 1.050,- Euro + 20% Ust.
* Betriebskosten: 150,- Euro + 20% Ust.

Infrastruktur:

Dieses Geschäftslokal befindet sich im Zentrum von 7051 Großhöflein, einem Nachbarort der Landeshauptstadt Eisenstadt. Einkaufszentren, Bus und Park & Ride Bahnhof in unmittelbarer Nähe. Großhöflein ist eine Weinbaugemeinde, am Hang des Leithagebirges mit rund 2.100 Einwohnern.

Der Vermittler ist als Doppelmakler tätig.

"Leben braucht Raum" * T19-RE Real Estate GmbH & Co KG * www.teamneunzehn.at [https://www.teamneunzehn.at]

Doppelmakler

Wir werden als Immobilienmakler kraft bestehenden Geschäftsgebrauchs als Doppelmakler tätig und haben sohin beide Seiten des Vertrages (Verkäufer-Käufer, Vermieter-Mieter) zu unterstützen.

Wirtschaftliches Naheverhältnis

Es wird bekannt gegeben, dass folgendes wirtschaftliches Naheverhältnis zwischen der teamneunzehn-Gruppe und dem Verkäufer/der vermietenden Partei besteht: ständige und dauerhafte Beauftragung mit der Vermittlung des bestehenden Immobilienportfolios

Haftungserklärung zum Inserat

Irrtum und Änderungen vorbehalten! Sofern es sich bei Bildern um Visualisierungen handelt, können Abänderungen zur tatsächlichen Ausführung resultieren. Wir weisen ausdrücklich darauf hin, dass das auf Fotos oder Visualisierungen ersichtliche Mobiliar bzw. Inventar nicht Bestandteil des inserierten Preises ist.

 

 

Maßgefertigte Tischlerküchen zum fairen Preis

Vollkommen transparent mit Fingerspitzengefühl und individuell sorgen wir für die Verwirklichung der auf Ihre Immobilie und Wünsche zugeschnittenen Maßküchen- und Möbel, welche insbesondere durch attraktive Preise bei höchster Qualität punkten können. Gerne beraten wir auch Sie, bitte wenden Sie sich zur anschließenden Kontaktaufnahme an kueche@teamneunzehn.at

Passender Versicherungsschutz für Ihre Immobilie?

Sie haben eine Immobilie erworben oder angemietet und benötigen nun einen passenden Versicherungsschutz, welcher Sie im Schadensfall vor unerwarteten Kosten schützt? Wir können Ihnen ein unverbindliches und günstiges Angebot von einem unabhängigen Kooperationspartner zukommen lassen. Die Zusendung und Kommunikation erfolgt direkt mit unserem Kooperationspartner, die Unterlagen zu Ihrer Wohnung erhält der Kooperationspartner jedoch im Vorfeld bereits direkt von uns (Ihr Zeitaufwand soll ja schlussendlich möglichst geringgehalten werden). Bei Interesse freuen wir uns auf Ihre Kontaktaufnahme unter versicherung@teamneunzehn.at

Gründliche und professionelle Reinigung Ihrer Immobilie

Jede Immobilie ist besonders und hat Ihre Vorzüge, eine gereinigte Wohnung ist definitiv begehrter und ermöglicht einen besseren Verwertungserfolg. Wir möchten unseren Kunden stets Immobilien im gereinigten Zustand präsentieren und stehen für Rückfragen bzw. bei Bedarf zu unserem Serviceangebot gerne unter reinigung@teamneunzehn.at zur Verfügung

Infrastruktur / Entfernungen

Gesundheit
Arzt <1.500m
Apotheke <2.800m
Klinik <5.750m
Krankenhaus <2.750m

Kinder & Schulen
Schule <1.375m
Kindergarten <1.550m
Universität <2.975m
Höhere Schule <4.250m

Nahversorgung
Supermarkt <925m
Bäckerei <1.775m
Einkaufszentrum <3.300m

Sonstige
Bank <2.050m
Geldautomat <3.125m
Post <225m
Polizei <3.075m

Verkehr
Bus <125m
Autobahnanschluss <1.825m
Bahnhof <1.675m

Angaben Entfernung Luftlinie / Quelle: OpenStreetMap

Merkmale

  • Bezug: nach Vereinbarung
  • Erdgeschoss
  • Einbauküche
  • Garage, Außen-Stellplatz
  • Bodenbelag: Fliesen, Parkett, Stein, Teppich
  • teilweise erschlossen

Grundrisse

Grundrisse
1 / 3

Bausubstanz und Energie

Heizwärmebedarf (HWB)

F

Gesamtenergieeffizienz (fGEE)

F
  • Baujahr1978
  • Zustand der ImmobilieNeubau, Gepflegt
  • EnergieträgerElektro, Holz, Luft-/Wasser-Wärmepumpe
MediumRectangleTop

Mietkosten

Nettokaltmiete
1.050,47 €
Betriebskosten
150 €
Provision für Mieter
3 €
Kaution
5 Bruttomonatsmieten
Weitere Preisinformationen
1 Stellplatz
1 Garagenstellplatz
Nettokaltmiete: 1.050,47 EUR

Lage

address-icon
Hauptstraße 5Großhöflein (7051)
Dieses Geschäftslokal befindet sich im Zentrum von Großhöflein, einem Nachbarort der Landeshauptstadt Eisenstadt. Gute Verkehrsanbindung durch Autobahn A3, Bus, und Park & Ride Bahnhof, nur 5 Fahrminuten entfernt.

Weitere Informationen

Stichworte Stellplatz vorhanden, Lagerfläche: 174,40 m², Nutzfläche: 211,78 m², Bürofläche: 70,50 m², Grundstücksfläche: 324,73 m², Anzahl der separaten WCs: 2, Kellerfläche: 140,00 m², Bundesland: Burgenland, 1 Etagen

Weitere Services

Lust auf eine Besichtigung?
Eine Frage zur Immobilie?
Mit einer persönlichen Nachricht hast du bessere Chancen auf eine Antwort.
Mit der Nutzung der oben angegebenen Telefonnummer oder durch Klicken auf „Kontaktieren“ akzeptierst Du die Allgemeinen Nutzungsbedingungen, denen Du jederzeit widersprechen kannst. Weitere Informationen zum Datenschutz

Über den Anbieter

Handelskai 94-96/21. Stock, 1200 BRIGITTENAU
partner badge
Partnerschaft
Herr Otto SzökeDein Kontakt

Weitere Unterlagen

Online-ID: 251Z6ERW9CMC
Referenznummer: OBGC202512101330054757fccb54b39
MediumRectangleTop
Wie zufrieden bist du mit dieser Seite (nicht mit der Immobilie selbst)?