
ohne-makler.net - Immobilien selbst vermarkten
Privat von Johannes Rohlmann
Kontaktiere den Anbieter schriftlich, es ist keine Telefonnummer hinterlegt.
Preise & Kosten
Kaution
6.000,00
Provision für Mieter
provisionsfrei
Warum sehe ich diese Anzeige? – Du siehst diese Anzeige basierend auf Ihrer Navigation auf unserer Website und den Suchkriterien, die du verwendet hast.
Lage
Super Lage für eine Rechtsanwaltskanzlei, Steuerberatung, Physiotherapie, Logopädiepraxis, Stützpunkt für Altenpflegeservice, Kosmetik, Nagelstudio, Friseur, Barbershop, Spiellokal, Schneiderei, Sonnenstudio, Kiosk, Fahrschule, Werkstatt für kreative Handwerker oder Künstler.
Viele Fußgänger, Bahnhofsnähe, Nah zur...
Büro-/Praxisfläche
Kategorie
Bürofläche
Bezug
nach Absprache
Geschoss
Erdgeschoss
Energie & Heizung
Warum sehe ich diese Anzeige? – Du siehst diese Anzeige basierend auf Ihrer Navigation auf unserer Website und den Suchkriterien, die du verwendet hast.
Energieausweistyp
Bedarfsausweis
Gebäudetyp
Nicht-Wohngebäude
Endenergiebedarf
177,00 kWh/(m²·a)
Weitere Energiedaten
Energieträger
Gas
Heizungsart
Zentralheizung
Details
Objektbeschreibung
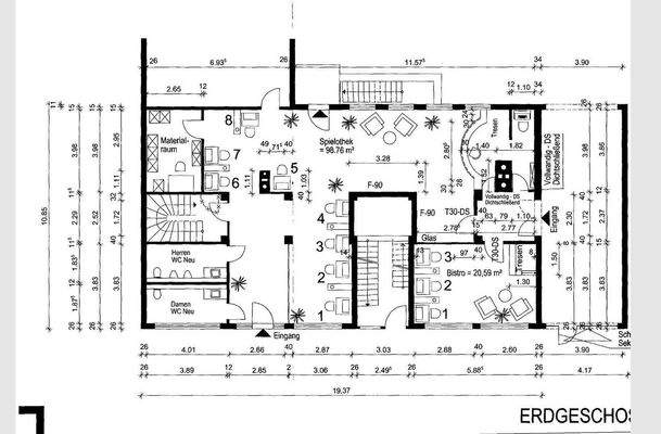
170qm Ladenlokal mit sehr flexiblem Zuschnitt und modernen Sanitärräumen
Dieses Ladenlokal liegt in zentraler Innenstadtlage zwischen Berliner Platz und Hauptbahnhof in einer gut frequentierten Nebenstraße am Goethering in der Schlagvorder Str.
Die schönen großen Fensterflächen ermöglichen einen freien Blick nach...
Ausstattung
Gäste-WC, Teppichboden, Fliesen
Bemerkungen:
Die Bilder geben die aktuelle Nutzung als Spielhalle wieder.
Der Grundriss ist sehr flexibel gestaltbar. Hier ist alles denkbar.
Die großen Fenster mit langer Fensterfront zur Straße ermöglichen eine gute Wahrnehmung und sind damit eine sehr gute Werbetafel.
Preisinformation
2 Stellplätze
Nettokaltmiete: 1.350,00 EUR
Weitere Informationen
Sonstiges
Heizungsart: Zentralheizung
Energieträger: Gas
Notwendige und sinnvolle Baumaßnahmen können miteinander abgestimmt werden und flexibel umgesetzt werden.
ohne-makler (OM) ist weder Anbieter noch Vermittler der Immobilie. OM betreibt eine Plattform für Immobilieneigentümer, die unter anderem die...
Anbieter der Immobilie
ohne-makler.net - Immobilien selbst vermarkten
Humboldtstr. 25 A, 21509 Glinde
Privat von Johannes Rohlmann
Dein Ansprechpartner
Kontaktiere den Anbieter schriftlich, es ist keine Telefonnummer hinterlegt.
Online-ID: 2mn5k5w
Referenznummer: 320500
Finde Angebote wie dieses
Hier geht es zu unserem Impressum, den Allgemeinen Geschäftsbedingungen, den Hinweisen zum Datenschutz und nutzungsbasierter Online-Werbung.