
Schneide GmbH
Frau Jana Schütz
004 ···
Nr. anzeigenPreise & Kosten
Provision für Käufer
7,14 % des Kaufpreises inkl. 19 % Ust.
Lage
Das Objekt liegt im ländlich geprägten Hamburg-Kirchwerder, unweit des Zollenspieker-Elbdeichs und der Zollenspieker Fähre.
Kindergärten, Ärzte sowie die Grund- und Stadtteilschule Kirchwerder befinden sich in gut erreichbarer Nähe.
Einkaufsmöglichkeiten wie Rewe in Kirchwerder sowie Penny, Edeka und Aldi in...
Das Haus
Kategorie
Mehrfamilienhaus
Baujahr
1980
Bezug
nach Absprache
Derzeitige Nutzung
vermietet
Energie & Heizung
Warum sehe ich diese Anzeige? – Du siehst diese Anzeige basierend auf Ihrer Navigation auf unserer Website und den Suchkriterien, die du verwendet hast.
Energieausweistyp
Verbrauchsausweis
Gebäudetyp
Wohngebäude
Baujahr laut Energieausweis
1999
Wesentliche Energieträger
GAS
Gültigkeit
bis 07.08.2028
Effizienzklasse
C
Endenergieverbrauch
85,40 kWh/(m²·a)
Weitere Energiedaten
Energieträger
Gas
Details
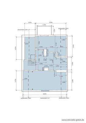
Objektbeschreibung
Mit diesem Verkaufsangebot präsentieren wir Ihnen eine gepflegte Anlageimmobilie mit 8 vermieteten Wohneinheiten in massiver Bauweise, gelegen im Hamburger Stadtteil Kirchwerder.
Die Immobilie befindet sich auf einem großzügigen Grundstück von ca. 1.267 m².
Über die Zufahrt erreichen Sie die acht freistehenden...
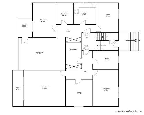
Ausstattung
Ausstattung Wohnungen:
. 3 × 2-Zimmer-Wohnung
. 5 × 3-Zimmer-Wohnung
. Duschbäder / Vollbäder (gepflegt und laufend modernisiert)
. Einbauku?chen (gepflegt und laufend modernisiert)
. Drei Loggien und zwei Terrassen
. Je Wohnung ist 1 Abstellraum zugehörig
Baustoffe/Bauart:
Anbau mit 6...
Preisinformation
8 Stellplätze
5 Garagenstellplätze
Ist-Mieteinnahmen pro Jahr: 79.202,40 EUR
Weitere Informationen
Sonstiges
. Die Straße "Kirchenheerweg" ist endgültig hergestellt worden.
Der Anschluss an die öffentliche Versorgung für Strom, Gas, Wasser- und Abwasser, Telefon und Kabel-TV ist vorhanden.
. Die gesetzliche Dichtheitsprüfung der Abwasserleitungen erfolgte vor etwa 5 Jahren. Es sind keine Mängel...
Anbieter der Immobilie
Schneide GmbH
Kirchwerder Landweg 1, 21037 Hamburg
Online-ID: 2mn765n
Referenznummer: JS_KH_MFH
Finde Angebote wie dieses
Hier geht es zu unserem Impressum, den Allgemeinen Geschäftsbedingungen, den Hinweisen zum Datenschutz und nutzungsbasierter Online-Werbung.