

BUERO.IMMOBILIEN Leipzig GmbH & Co. KG
Frau Kathrin Oldenburg
034 ···
Nr. anzeigenPreise & Kosten
Provision für Mieter
1,0 Nettomonatsmiete
Warum sehe ich diese Anzeige? – Du siehst diese Anzeige basierend auf Ihrer Navigation auf unserer Website und den Suchkriterien, die du verwendet hast.
Lage
Das kernsanierte Gründerzeithaus ist im Leipziger Musikviertel gelegen und bietet in zentraler, verkehrsgünstiger Lage von Leipzig einen idealen Standort für kleinere und mittlere Unternehmen. In direkter Nachbarschaft des Bundesverfassungsgerichts und südlich des Innenstadtrings gelegen, sind innerhalb weniger Minuten auch...
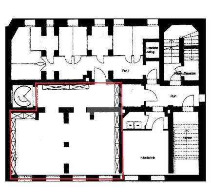
Die Industriefläche
Kategorie
Lagerhalle
Details
Objektbeschreibung
Hinter der klassisch gestalteten Fassade gelangen Sie über ein repräsentatives Treppenhaus in die Souterrainfläche. Diese trockene Kellereinheit verfügt über Fenster auf Grasnarbenhöhe und Fußbodenheizung und kann als Lager- und Archivfläche genutzt werden. Vor dem Objekt befinden sich Kurzzeitparkplätze so wie weitere...
Weitere Informationen
Sonstiges
Der Mietpreis richtet sich nach Ausstattung und Vertragslaufzeit und liegt bei ca. 6,50 - 7,50 EUR/m².
Bitte sprechen Sie uns an, gern stellen wir Ihnen eine Auswahl geeigneter Büroflächenangebote zusammen. Für Fragen, ein persönliches Gespräch oder auch eine persönliche Terminvereinbarung stehen wir Ihnen...
Anbieter der Immobilie
BUERO.IMMOBILIEN Leipzig GmbH & Co. KG
Markt 9, 04109 Leipzig

Online-ID: 2mn9f5c
Referenznummer: 972/E2/Eh1
Finde Angebote wie dieses
Hier geht es zu unserem Impressum, den Allgemeinen Geschäftsbedingungen, den Hinweisen zum Datenschutz und nutzungsbasierter Online-Werbung.