
DFK Home GmbH
Nicole Lipkart
Kontaktiere den Anbieter schriftlich, es ist keine Telefonnummer hinterlegt.
Preise & Kosten
nicht in Warmmiete enthalten
Kaution
2.400,00
Warum sehe ich diese Anzeige? – Du siehst diese Anzeige basierend auf Ihrer Navigation auf unserer Website und den Suchkriterien, die du verwendet hast.
Lage
Kaltenkirchen mit seinen über 20.000 Einwohnern ist eine junge Stadt, in der es sich gut wohnen und arbeiten lässt. Es nimmt als Mittelzentrum Versorgungsaufgaben für das Umland wahr und verfügt über ein ansprechendes Zentrum, dass zum Verweilen einlädt. Kaltenkirchen liegt über die BAB 7 nur knapp 30 Autominuten von Hamburg...
Die Wohnung
Wohnungslage
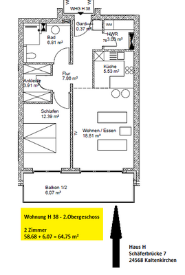
2. Geschoss
Bezug
01.02.2026
Wohnanlage
Energie & Heizung
Warum sehe ich diese Anzeige? – Du siehst diese Anzeige basierend auf Ihrer Navigation auf unserer Website und den Suchkriterien, die du verwendet hast.
Energieausweistyp
Bedarfsausweis
Gebäudetyp
Wohngebäude
Baujahr laut Energieausweis
2017
Wesentliche Energieträger
Fernwärme
Effizienzklasse
A
Endenergiebedarf
45,30 kWh/(m²·a)
Weitere Energiedaten
Heizungsart
Fußbodenheizung
Details
Objektbeschreibung
Ihre 3-Zimmer-Wohnung im 2. OG erreichen Sie mit dem Fahrstuhl oder sportlich über das helle Treppenhaus. Hier wohnen Sie ruhig und entspannt in Ihrem tageslichtdurchfluteten Wohn-Esszimmer mit Zugang zum großen Balkon, Ihrer modernen, offenen Einbauküche, einem geräumigen Schlafzimmer, einem hochwertigen Badezimmer mit...
Ausstattung
Ihre Wohnung zeichnet sich durch die absolut zentrale Lage, lichtdurchflutete Wohnräume, 3-fach-verglaste Fenster mit weißen Kunststoffrahmen und elektrischen Rollläden (in den Wohn- und Aufenthaltsräumen), eine hochwertige Einbauküche, Fußbodenheizung in allen Räumen u.v.m. aus.
Details im Überblick:
+ KfW 55 -...
Preisinformation
1 Tiefgaragenstellplatz, Miete: 50,00 EUR
Weitere Informationen
Sonstiges
Die in unseren Angeboten enthaltenen Angaben basieren auf uns erteilten Informationen. Wir sind bemüht, uns über Objekte und Vertragspartner möglichst vollständige und richtige Angaben zu beschaffen. Eine Haftung für die Richtigkeit und Vollständigkeit können wir jedoch nicht übernehmen. Unsere Nachweise sind...
Anbieter der Immobilie
DFK Home GmbH
Gottlieb-Daimler-Str. 9, 24568 Kaltenkirchen
Nicole Lipkart
Dein Ansprechpartner
Kontaktiere den Anbieter schriftlich, es ist keine Telefonnummer hinterlegt.
Online-ID: 2mn9t5c
Referenznummer: 167748
Finde Angebote wie dieses
Hier geht es zu unserem Impressum, den Allgemeinen Geschäftsbedingungen, den Hinweisen zum Datenschutz und nutzungsbasierter Online-Werbung.