

ImmobilienCenter der Volksbank Freiburg eG
Herr Jochen Silinski
+49 ···
Nr. anzeigenPreise & Kosten
Provision für Käufer
3,57 % inkl. MwSt.
Lage
Die Gemeinde Sasbach am Kaiserstuhl, eingebettet zwischen dem Schwarzwald und den Vogesen, bietet eine malerische Kulisse direkt am Rhein. Hier erwarten Sie nicht nur herrliche Spazierwege entlang des Flusses und durch die Weinberge, sondern auch ideale Möglichkeiten zum Wandern, Radfahren, Joggen oder...
Das Renditeobjekt
Kategorie
Mehrfamilienhaus
Baujahr
1963
Energie & Heizung
Warum sehe ich diese Anzeige? – Du siehst diese Anzeige basierend auf Ihrer Navigation auf unserer Website und den Suchkriterien, die du verwendet hast.
Energieausweistyp
Verbrauchsausweis
Gebäudetyp
Wohngebäude
Baujahr laut Energieausweis
1963
Wesentliche Energieträger
Flüssiggas
Gültigkeit
01.05.2025 bis 30.04.2035
Effizienzklasse
D
Endenergieverbrauch
104,00 kWh/(m²·a) - Warmwasser enthalten
Weitere Energiedaten
Energieträger
Flüssiggas
Heizungsart
Zentralheizung
Details
Objektbeschreibung
Zum Verkauf steht ein gepflegtes Mehrfamilienhaus mit insgesamt sechs Wohneinheiten, das sich aus zwei Gebäudeteilen zusammensetzt. Das ursprüngliche Wohnhaus wurde ca. 1963 errichtet und in 1991 durch einen Anbau erweitert. Im Zuge der Erweiterung wurde auch die Heizungsanlage erneuert.
Im Jahr 2024 erfolgten...
Ausstattung
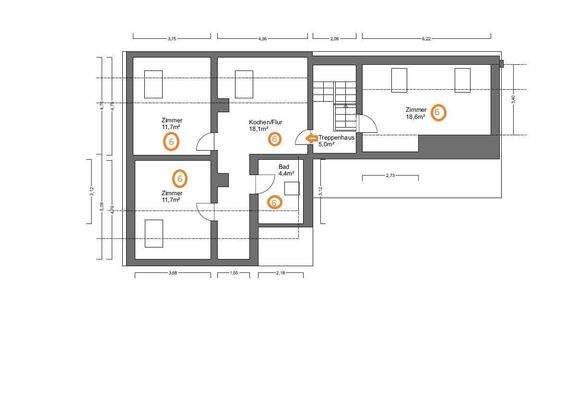
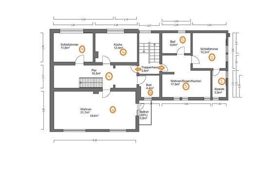
Wohnungseinheiten im Überblick:
Erdgeschoss:
Wohnung Nr. 1: 2-Zimmer-Wohnung ca. 35 m² Wohnfläche, vermietet seit 05/25
Wohnung Nr. 2: 1-Zimmer-Wohnung ca. 24 m² Wohnfläche, vermietet
Wohnung Nr. 3: 1-Zimmer-Wohnung ca. 50 m² Wohnfläche, vermietet seit 02/2025
Obergeschoss:
Wohnung Nr. 4...
Weitere Informationen
Sonstiges
Hinweis: Gesetzliche Austausch- und Nachrüstungsverpflichtungen
Wer eine Immobilie kauft oder erbt, muss sie so sanieren, dass das Gebäude den gesetzlichen Anforderungen entspricht. Dafür haben Neueigentümer ab Einzug zwei Jahre Zeit.
Oberste Geschossdecken oder Dach dämmen (§ 47 GEG):
Ist der...
Anbieter der Immobilie

ImmobilienCenter der Volksbank Freiburg eG

Online-ID: 2mn9y5f
Referenznummer: 2025 -2460
Finde Angebote wie dieses
Hier geht es zu unserem Impressum, den Allgemeinen Geschäftsbedingungen, den Hinweisen zum Datenschutz und nutzungsbasierter Online-Werbung.