
Matador Immobilien GmbH
Herr Alexander Nirschl
004 ···
Nr. anzeigenPreise & Kosten
Provision für Käufer
3,57 % inkl. MwSt.
Lage
Das Objekt befindet sich in ruhiger und familienfreundlicher Lage im Ortsteil Oberpiebing der Gemeinde Aiterhofen. Die Umgebung bietet eine angenehme Kombination aus ländlicher Idylle und guter Anbindung an die Stadt Straubing. Einkaufsmöglichkeiten, Schulen, Kindergärten und Freizeiteinrichtungen sind in wenigen Minuten...
Das Haus
Kategorie
Mehrfamilienhaus
Baujahr
2019
Bezug
Ab sofort!
Energie & Heizung
Warum sehe ich diese Anzeige? – Du siehst diese Anzeige basierend auf Ihrer Navigation auf unserer Website und den Suchkriterien, die du verwendet hast.
Energieausweistyp
Bedarfsausweis
Gebäudetyp
Wohngebäude
Baujahr laut Energieausweis
2019
Wesentliche Energieträger
LUFTWP
Gültigkeit
bis 05.04.2030
Effizienzklasse
A+
Endenergiebedarf
21,30 kWh/(m²·a)
Weitere Energiedaten
Heizungsart
Luft-/Wasser-Wärmepumpe, Zentralheizung
Details
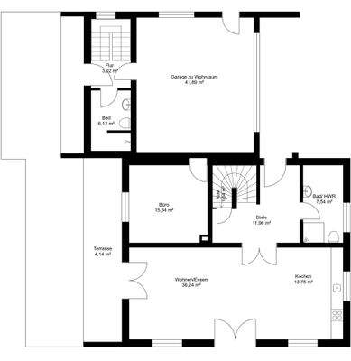
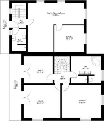
Objektbeschreibung
Willkommen in Ihrem neuen Zuhause!
Zum Verkauf steht ein neuwertig und hochwertig ausgestattetes Einfamilienhaus mit Einliegerwohnung, das keine Wünsche offen lässt.
Dieses Haus ist ideal für Familien, Mehrgenerationenwohnen oder auch zur teilweisen Vermietung geeignet.
Vereinbaren Sie noch heute einen...
Ausstattung
Die Immobilie besticht durch ihre großzügige Planung und eine durchdachte Raumaufteilung mit insgesamt 10 Zimmern auf einer Wohnfläche von ca. 362 m².
Hier entsteht ein Wohngefühl, das gleichermaßen Komfort, Eleganz und Funktionalität vereint.
Errichtet im Jahr 2019, präsentiert sich das Haus in neuwertigem...
Preisinformation
3 Stellplätze
Weitere Informationen
Sonstiges
Besondere Merkmale
Smart Home Technologie:
Video-Türsprechanlage, Fingerabdruckscanner und schlüsselloser Zugang für maximale Sicherheit und Komfort.
Energieeffizient & nachhaltig:
17 KWp Photovoltaikanlage, Wärmepumpe und Klimaanlage im EG sorgen für ein angenehmes Raumklima bei niedrigen...
Anbieter der Immobilie
Online-ID: 2mndg52
Referenznummer: 25-92
Finde Angebote wie dieses
Hier geht es zu unserem Impressum, den Allgemeinen Geschäftsbedingungen, den Hinweisen zum Datenschutz und nutzungsbasierter Online-Werbung.