
s REAL Steiermark Realservice für steir. Sparkassen Realitätenvermittlungs GmbH
Herr Patrick Zaunfuchs
+43 ···
Nr. anzeigenPreise & Kosten
Provision für Käufer
3% des Kaufpreises zzgl. 20% USt.
Lage
8200 Ludersdorf-Wilfersdorf
Das Haus
Kategorie
Doppelhaushälfte
Baujahr
2016
Energie & Heizung
Warum sehe ich diese Anzeige? – Du siehst diese Anzeige basierend auf Ihrer Navigation auf unserer Website und den Suchkriterien, die du verwendet hast.
Heizwärmebedarf (HWB)
40,50 kWh/(m²·a)
Gesamtenergieeffizienz (fGEE)
0,70
Details
Objektbeschreibung
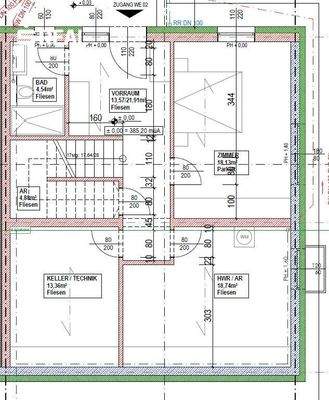
Zum Verkauf steht eine gepflegte 2016 erbaute Doppelhaushälfte mit einer Nutzfläche von ca. 129 m² (und zusätzlichem Heiz-/Technikraum mit ca.13m²). Das Haus befindet sich in einer schönen Wohngegend in der Gemeinde Ludersdorf-Wilfersdorf nur wenige Fahrminuten von Gleisdorf entfernt und ist optimal für Familien...
Weitere Informationen
Stichworte
Nutzfläche: 129,00 m², Anzahl Terrassen: 1, Balkon-Terrassen-Fläche: 14,00 m², Bundesland: Steiermark
Anbieter der Immobilie

s REAL Steiermark Realservice für steir. Sparkassen Realitätenvermittlungs GmbH
Sparkassenplatz 4 (Zentrale), 8010 GRAZ
Online-ID: 2mndw57
Referenznummer: OBGC202511051116224265ffd2e85ad
Finde Angebote wie dieses
Günstige Immobilienfinanzierung einfach online berechnen
Persönliches Angebot berechnenWarum sehe ich diese Werbung? – Du siehst diese Werbung basierend auf Deiner Navigation auf unserer Website und der von Dir verwendeten Suchkriterien.
Diese Werbung wird bezahlt von durchblicker
Werbung melden
Hier geht es zu unserem Impressum, den Allgemeinen Geschäftsbedingungen, den Hinweisen zum Datenschutz und nutzungsbasierter Online-Werbung.