

FORTH Immobilien & Hausverwaltung GmbH
Frau Carolin Forth
034 ···
Nr. anzeigenPreise & Kosten
Provision für Käufer
3,57%
Die Provision wird nach Abschluss des notariellen Kaufvertrages fällig gestellt.
Lage
Die Eigentumswohnung befindet sich in einer attraktiver Wohnlage von Markkleeberg, in der Eulenbergallee, nur wenige Geh- und Fahrradminuten vom Cospudener See entfernt. Diese Lage verbindet auf ideale Weise naturnahes Wohnen mit urbaner
Nähe und bietet damit sowohl für Eigennutzer als auch für Kapitalanleger hervorragende...
Die Wohnung
Bezug
sofort
Wohnanlage
Energie & Heizung
Warum sehe ich diese Anzeige? – Du siehst diese Anzeige basierend auf Ihrer Navigation auf unserer Website und den Suchkriterien, die du verwendet hast.
Energieausweistyp
Verbrauchsausweis
Gebäudetyp
Wohngebäude
Baujahr laut Energieausweis
1998
Wesentliche Energieträger
Gas
Gültigkeit
26.09.2018 bis 26.09.2028
Effizienzklasse
C
Endenergieverbrauch
88,40 kWh/(m²·a)
Weitere Energiedaten
Energieträger
Gas
Heizungsart
Zentralheizung
Details
Objektbeschreibung
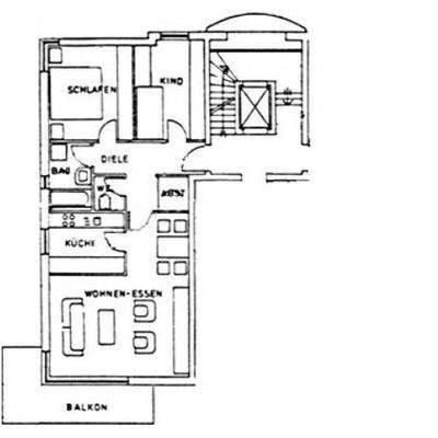
Die angebotene, leerstehende 3-Zimmer-Wohnung befindet sich im 1. Obergeschoss eines gepflegten Mehrfamilienhauses in ruhiger, grüner Wohnlage von Markkleeberg. Mit einer Wohnfläche von 77,23 m² überzeugt die Wohnung durch eine funktionale und gut durchdachte Raumaufteilung sowie vielseitige Nutzungsmöglichkeiten.
Der...
Weitere Informationen
Heizungsart:
Heizkoerper
Anbieter der Immobilie

Online-ID: 2mne95v
Referenznummer: ETW Eulenbergallee, Markkleeberg
Finde Angebote wie dieses
Hier geht es zu unserem Impressum, den Allgemeinen Geschäftsbedingungen, den Hinweisen zum Datenschutz und nutzungsbasierter Online-Werbung.