
3SI Makler GmbH
Herr Mario Häring
+43 ···
Nr. anzeigenPreise & Kosten
Provision für Käufer
3% des Kaufpreises zzgl. 20% USt.
Lage
Alois-Drasche-Park / Schloß Belvedere / Hauptbahnhof
Die Wohnung
Wohnungslage
3. Geschoss
Bezug
sofort
Wohnanlage
Energie & Heizung
Warum sehe ich diese Anzeige? – Du siehst diese Anzeige basierend auf Ihrer Navigation auf unserer Website und den Suchkriterien, die du verwendet hast.
Weitere Energiedaten
Heizungsart
Fußbodenheizung, Luft-/Wasser-Wärmepumpe, offener Kamin
Details
Objektbeschreibung
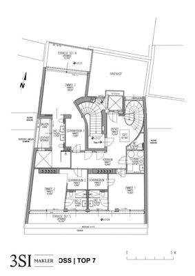
TOP 7 - MAISONETTE DACHGESCHOSS
Dieses außergewöhnliche Penthouse vereint Luxus, Großzügigkeit und modernen Wohnkomfort in vollendeter Form. Auf zwei Ebenen gelegen und mit einem privaten Lift, der beide Etagen direkt erschließt, bietet diese Immobilie ein Wohngefühl der Extraklasse.
Großzügige Terrassen-...
Weitere Informationen
Stichworte
Nord-Süd-Balkon/Terrasse, Anzahl der Badezimmer: 3, Anzahl der separaten WCs: 2, Anzahl Terrassen: 4, Balkon-Terrassen-Fläche: 76,80 m², Bundesland: Wien, 4 Etagen, Wohnungsnr.: 7
Anbieter der Immobilie
3SI Makler GmbH
Tegetthoffstraße 7, 1010 Wien
Online-ID: 2mneq5g
Referenznummer: OBGC20251125123503127e714f0675e
Finde Angebote wie dieses
Günstige Immobilienfinanzierung einfach online berechnen
Persönliches Angebot berechnenWarum sehe ich diese Werbung? – Du siehst diese Werbung basierend auf Deiner Navigation auf unserer Website und der von Dir verwendeten Suchkriterien.
Diese Werbung wird bezahlt von durchblicker
Werbung melden
Hier geht es zu unserem Impressum, den Allgemeinen Geschäftsbedingungen, den Hinweisen zum Datenschutz und nutzungsbasierter Online-Werbung.