

Villa zum Kauf1850000 €10.694 €/m²4 Zimmer • 173 m² • 760 m² Grundstück
1850000 €
10.694 €/m²
4 Zimmer • 173 m² • 760 m² Grundstück
Elegante Villa mit ca. 230 m² Wohn-Nutzfläche & Einliegerapartment
Merkmale
- 760 m² Grundstück
- Keller
- Stellplatz
- Balkon
- Garten
- Terrasse
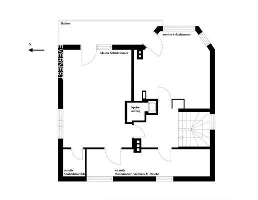
Grundrisse
Grundrisse
1 / 4
Realisiere Dein Projekt
Bausubstanz und Energie
Energieausweis
D
- Baujahr1985
- EnergieträgerGas
Preisdetails
Kaufpreis
1850000 €
10.693,64 €/m²
Hausgeld
600 €
Provision für Käufer
3.57 inkl. MwSt.
Bei Abschluss eines notariellen Kaufvertrages ist eine Käuferprovision vom Käufer in Höhe von 3.57 % inkl. MwSt. aus dem Kaufpreis fällig.
Bei Abschluss eines notariellen Kaufvertrages ist eine Käuferprovision vom Käufer in Höhe von 3.57 % inkl. MwSt. aus dem Kaufpreis fällig.
Geschätzte Gesamtkosten
2.064.045 €1
Kaufpreis
1.850.000 €
Kaufnebenkosten
214.045 €
2Notarkosten (1,5%)
27.750 €
Grunderwerbsteuer (6%)
111.000 €
Provision für Käufer (3,57%)
66.045 €
Grundbucheintrag (0,5%)
9.250 €
1Der angezeigte Wert ist eine automatisch berechnete Schätzung von immowelt.
2Bei den Angaben handelt es sich um ortsübliche Werte. Individuelle Kosten können abweichen.
Lage

Wannsee, Berlin (14109)
Der Anbieter hat die genaue Adresse nicht freigegeben
Weitere Informationen
Weitere Services
Lust auf eine Besichtigung?
Eine Frage zur Immobilie?
Über den Anbieter
Online-ID: 2mney52
Referenznummer: L-4OQCYJR

Evernest GmbH
Bewertung: 4,5 von 5 Sternen
Wie zufrieden bist du mit dieser Seite (nicht mit der Immobilie selbst)?

