Version: 8.24.0Navigation überspringen
14.500 €
6.650 m² Lagerfläche
Immowelt logo

Lagerhalle zur Miete
14.500 €
6.650 m² Lagerfläche

***8.000 QM FIRMENSTANDORT - IDEAL FÜR VERARBEITENDE BETRIEBE UND FACHHANDEL***

Hier können Sie sich mit Ihrem Unternehmen niederlassen:

Produktions- und Lagerhalle sowie Bürogebäude und Freifläche

Die Eckdaten im Überblick:
* Grundstück ca. 8.000 qm
* Hallen- und Produktionsfläche ca. 2.150 qm
* Bürogebäude ca. 670 qm
* Außenlagerfläche ca. 4.500 qm

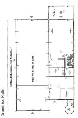
a) Produktions- und Lagerhalle:
Die Halle hat eine Fläche von rund 2.150 qm.
In der höheren Halle befindet sich eine Kranbahn - Nutzlast 3,2 to.
Im Obergeschoss des niedrigeren Hallenteils befinden sich Büro-, Lager- und Archivflächen sowie Toiletten.
Auf der Westseite verfügt die Halle über ein auskragendes Schleppdach von ca. 5 m als Unterstellmöglichkeit.

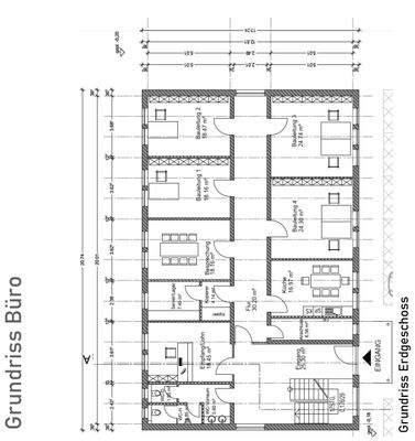
b) Bürogebäude:
Das Bürogebäude misst eine Nutzfläche von ca. 670 qm, verteilt auf 3 Geschosse.
Die Büroräume sind großzügig gestaltet und variieren zwischen Einzel-, Zweier- und Dreier-Büros und verfügen über einen modernen Standard.
Küche, Aufenthalts- und Besprechungsräume sind ebenfalls vorhanden.
Vor dem Büro befinden sich Parkplätze.

c) Außenlagerfläche:
Rund um die Produktions- und Lagerhalle sowie neben dem Büro verfügt die Liegenschaft weiterhin über insgesamt ca. 4.500 qm Freifläche zum Lagern und Abstellen.

Weitere Details erhalten Sie gerne auf Anfrage.

Merkmale

  • frei ab sofort
  • 8.000 m² Grundstück
H i g h l i g h t s / H a u p t k r i t e r i e n / E c k d a t e n

* Grundstück ca. 8.000 qm

* Hallen- und Produktionsfläche ca. 2.150 qm
* Halle in Holztafelbauweise
* Niedrigerer Hallenteil mit Ziegeldach
* Höherer Hallenteil mit Thermoblechdeckung
* Lichte Höhen von 3,90 m bis 10,55 m
* Lichte Höhe Kranbahn ca. 5,70 m
* Lichte Höhe Vordach Westseite ca. 6,80 m

* Bürogebäude mit ca. 670 qm Nutzfläche
* 3 Geschosse (EG, OG, DG)
* Dachgeschoss klimatisiert
* Modern gestaltete Büros
* Elektrische Jalousien
* Einzel-, Zweier- und Dreier-Büros
* Besprechungs- und Aufenthaltsräume
* Küchen und WCs vorhanden
* Glasfaseranschluss
* Parkplätze vor dem Büro

* Außenlagerflächen insgesamt ca. 4.500 qm
* Waschplatz mit Abschiede

Grundrisse

Grundrisse
1 / 7

Realisiere Dein Projekt

Bausubstanz und Energie

Der Anbieter hat keine Informationen zum Energieverbrauch bereit gestellt.
  • Zustand der ImmobilieGepflegt
Immowelt logo

Mietkosten

Nettomiete zzgl. Nebenkosten
14.500 €
Provision für Mieter
2,38 Nettokaltmieten inkl. gesetzl. MwSt.
Kaution
3 Kaltmieten
Weitere Preisinformationen
Nettokaltmiete: 14.500,00 EUR

Lage

address-icon
Berching (92334)
Der Anbieter hat die genaue Adresse nicht freigegeben
92334 Berching

Die Liegenschaft liegt im Süden der Stadt Berching - in einem Gewerbegebiet direkt in Sichtweite der Bundesstraße B299, welche sich nur 750 m entfernt befindet.

Die Autobahn A9 ist innerhalb von 15 Minuten Fahrzeit schnell erreichbar, die Autobahn A3 liegt ca. 25 km entfernt.

Berching mit seinen rund 9.500 Einwohnern liegt zwischen den Städten Neumarkt i. d. Opf. und Beilngries.

Weitere Informationen

Sonstiges Gerne sind wir für weitere Fragen und Informationen unter Tel.: 09181-883 004 2 erreichbar.

Bei Kauf/Miete verpflichtet sich der Käufer/Mieter an ORANGE Immobilienagentur - Franz Brendel, selbst. Immobilienmakler, eine Maklerprovision in der angegebenen Höhe nach notariellem Kaufvertrag bzw. nach einem Mietvertrag zu leisten. Durch Ihre Objektanfrage bestätigen Sie die Vereinbarung und Anerkennung dieser Maklercourtage. Alle Angaben stammen vom Eigentümer der Makler übernimmt hierfür keine Haftung.

Anfragen über die Immobilienportale werden nur mit vollständiger Adresse und Telefonnummer bearbeitet! Jeder ORANGE Immobilienagentur Kooperationspartner und somit selbständiger Immobilienmakler/in ist ein rechtlich eigenständiges Unternehmen bzw. handelt auf eigene Rechnung/Verantwortung. Aufsichtsbehörde: IHK für München und Oberbayern, Max-Joseph-Str. 2, 80333 München. Stichworte Lagerfläche: 6.650,00 m², Gesamtfläche: 7.320,00 m², Bürofläche: 670,00 m²

Weitere Services

Lust auf eine Besichtigung?
Eine Frage zur Immobilie?
Nachricht hinzufügen
Mit der Nutzung der oben angegebenen Telefonnummer oder durch Klicken auf „Kontaktieren“ akzeptierst Du die Allgemeinen Nutzungsbedingungen, denen Du jederzeit widersprechen kannst. Weitere Informationen zum Datenschutz

Über den Anbieter

Kumpfmühler Str. 59, 93051 Regensburg
partner badge
10 Jahre Partnerschaft
Herr Franz Brendel
Herr Franz BrendelDein Kontakt
Online-ID: 2mngf5y
Referenznummer: 493-VG-B
ORANGE Immobilienagentur
title
ORANGE Immobilienagentur
Bewertung: 4,3 von 5 Sternen
Nachricht hinzufügen
Mit der Nutzung der oben angegebenen Telefonnummer oder durch Klicken auf „Kontaktieren“ akzeptierst Du die Allgemeinen Nutzungsbedingungen, denen Du jederzeit widersprechen kannst. Weitere Informationen zum Datenschutz
Wie zufrieden bist du mit dieser Seite (nicht mit der Immobilie selbst)?