

Gastronomie/Hotel zur Miete • provisionsfrei980 €121 m² Gastrofläche
980 €
121 m² Gastrofläche
NEUE Gaststätte: 1A-Lauflage am Rathausplatz
Merkmale
- Bodenbelag: Marmor
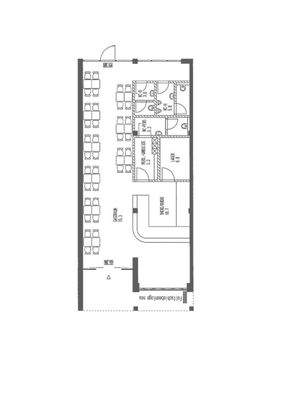
Grundrisse
Grundrisse
1 / 1
Realisiere Dein Projekt
Bausubstanz und Energie
Energieausweis
- Baujahr1970
- EnergieträgerFernwärme
Mietkosten
Kaltmiete
980 €
Provision fĂĽr Mieter
provisionsfrei; entfällt, da direkt vom Eigentümer
Kaution
10000 €
Lage

Rathausplatz 9, Traunreut (83301)
Weitere Informationen
Weitere Services
Lust auf eine Besichtigung?
Eine Frage zur Immobilie?
Ăśber den Anbieter
Dresdner Grund Eisinger oHGMaklerbĂĽro
Altenzeller Str. 50, 01069 Dresden
Partnerschaft + Diamond Partner
Herr Ralf EisingerDein Kontakt
Online-ID: 2mnhk5t

Dresdner Grund Eisinger oHG
Bewertung: 4,7 von 5 Sternen
Wie zufrieden bist du mit dieser Seite (nicht mit der Immobilie selbst)?

