
DER IMMO TIP Vermittlung von Immobilien GmbH
Herr Patrick Pflügner
004 ···
Nr. anzeigenPreise & Kosten
Provision für Mieter
Bitte beachte, das Angebot kann bei Vertragsabschluss die Zahlung einer Provision beinhalten. Weitere Informationen erhältst Du vom Anbieter.
Warum sehe ich diese Anzeige? – Du siehst diese Anzeige basierend auf Ihrer Navigation auf unserer Website und den Suchkriterien, die du verwendet hast.
Lage
Die Immobilie befindet sich in Dresden Striesen, nahe des Altenberger Platzes.
Der Standort überzeugt durch seine zentrale Lage und eine sehr gute Verkehrsanbindung. Haltestellen des öffentlichen Nahverkehrs sind in wenigen Gehminuten erreichbar - mit dem Auto benötigt man nur wenige Minuten ins Dresdner Stadtzentrum...
Büro-/Praxisfläche
Kategorie
Bürofläche
Baujahr
2025
Bezug
01.04.2026
Geschoss
1. Geschoss
Energie & Heizung
Warum sehe ich diese Anzeige? – Du siehst diese Anzeige basierend auf Ihrer Navigation auf unserer Website und den Suchkriterien, die du verwendet hast.
Wärme
Strom
Energieausweistyp
Bedarfsausweis
Gebäudetyp
Nicht-Wohngebäude
Gültigkeit
bis 21.06.2034
Endenergiebedarf (Wärme)
6,10 kWh/(m²·a)
Endenergiebedarf (Strom)
4,90 kWh/(m²·a)
Details
Objektbeschreibung
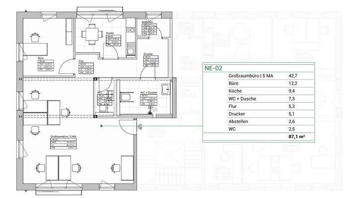
Zur Vermietung steht ein ca. 87 m² großes Büro, dass sich im 1. Obergeschoss eines Büroneubaus befindet. Die Fertigstellung ist für April 2026 geplant.
Bei Interesse stellen wir Ihnen gern weiterführende Unterlagen zur Verfügung.
Ausstattung
* Barrierefreiheit
* Einbauküche möglich
* Aufzug
* Zertifizierung DGNB (gold) / EG40 Standard (geringe Energiekosten)
* Passive Kühlung im Sommer (Erdwärme) mit Nutzung PV
* Fußbodenheizung mit Erdwärme
* Vorinstallation Elektro mit Bodentanks und Beleuchtungen
* Barrierefreie Bäder mit Dusche &...
Preisinformation
Nebenkosten pro qm: 2,00 EUR
Weitere Informationen
Sonstiges
Hinweis: Fehlende Angaben zum Energieausweis gemäß Energiesparverordnung 2014 ( EnEV ) begründen sich durch Nichtangabepflicht bei Denkmalschutzobjekten, Grundstücken, nichtbeheizbaren Immobilien oder wurden bisher trotz Aufforderung gegenüber dem Auftraggeber nicht zur Verfügung...
Anbieter der Immobilie
DER IMMO TIP Vermittlung von Immobilien GmbH
Semperstr. 1, 01069 Dresden
Online-ID: 2mnje5z
Referenznummer: 63626_02
Finde Angebote wie dieses
Hier geht es zu unserem Impressum, den Allgemeinen Geschäftsbedingungen, den Hinweisen zum Datenschutz und nutzungsbasierter Online-Werbung.