
McMakler GmbH
Ihr McMakler Team
080 ···
Nr. anzeigenPreise & Kosten
Provision für Käufer
Die Provision i.H.v. 3,57 % inkl. MwSt. ist mit Kaufvertragsbeurkundung fällig, sofern der Verkaufspreis über 83.000,00 € liegt.
Liegt der Verkaufspreis dagegen bei/unter 83. Weitere Informationen siehe Provisionshinweis.
Lage
Lage: Die naturnahe Lage, bietet eine grüne Umgebung mit vielen Naherholungsmöglichkeiten,
Bildung und Betreuung: vor Ort für Bildung und Betreuung ein Kindergarten vorhanden
Nahversorgung: Supermarkt, Apotheke, Post- und Bankfiliale in einem Radius von max. 6 km
Anbindung: Bushaltestelle und B258 komfortabel...
Das Renditeobjekt
Baujahr
1988
Bezug
nach Absprache
Energie & Heizung
Warum sehe ich diese Anzeige? – Du siehst diese Anzeige basierend auf Ihrer Navigation auf unserer Website und den Suchkriterien, die du verwendet hast.
Energieausweistyp
Bedarfsausweis
Gebäudetyp
Wohngebäude
Baujahr laut Energieausweis
1988
Wesentliche Energieträger
Öl
Effizienzklasse
E
Endenergiebedarf
156,80 kWh/(m²·a)
Weitere Energiedaten
Energieträger
Öl
Heizungsart
Zentralheizung
Details
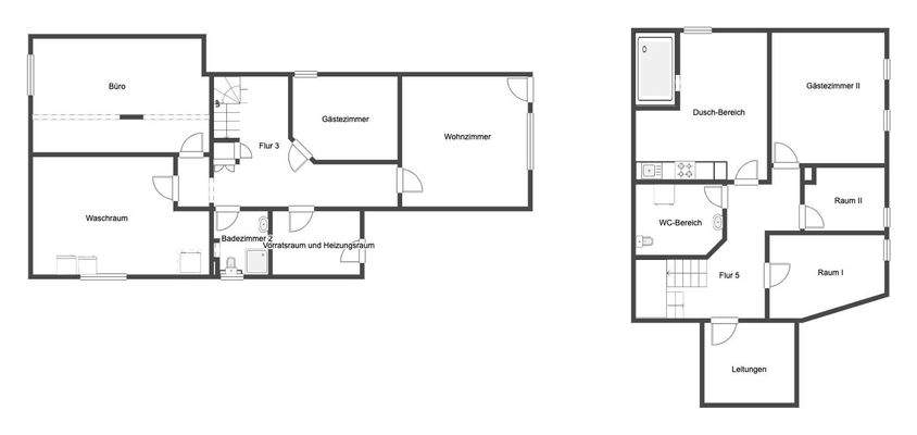
Objektbeschreibung
Objektnr: 1063854
Willkommen in Ihrem neuen Eigenheim! Gestalten Sie Ihr neues Zuhause mit großzügigem Garten- und Terrassenbereich in schöner und ruhiger Lage in Monschau. Hier stehen 2 Bungalows und eine Einliegerwohnung zur Gestaltung bereit - mit großzügigem Außenbereich samt Garten- und Terrassenbereich auf einem...
Ausstattung
+ Ensemble aus Bungalow I und Bungalow II (aktuelle Nutzung als Praxis) und Einliegerwohnung
+ tolle Außenbereiche: der Süd-Garten auf ca. 2.485 m² großzügigem Grund, lädt zum Verweilen ein -
3 Terrassen bereichern das Erlebnis
+ genießen Sie den gepflegten Zustand der Immobilie - zuletzt wurde das Haus 2016...
Weitere Informationen
Provisionshinweis
Die Provision i.H.v. 3,57 % inkl. MwSt. ist mit Kaufvertragsbeurkundung fällig, sofern der Verkaufspreis über 83.000,00 € liegt.
Liegt der Verkaufspreis dagegen bei/unter 83.000,00 €, ist die fest vereinbarte Mindestprovision i.H.v. mind. 5.950,00 € inkl. MwSt. mit Kaufvertragsbeurkundung fällig...
Anbieter der Immobilie
McMakler GmbH
Am Postbahnhof 17, 10243 Berlin
Online-ID: 2mnm25t
Referenznummer: e77202f039
Finde Angebote wie dieses
Hier geht es zu unserem Impressum, den Allgemeinen Geschäftsbedingungen, den Hinweisen zum Datenschutz und nutzungsbasierter Online-Werbung.