

Immobilien Bart-Vermittlung und Finanzierung
Herr Yannik Weber
+49 ···
Nr. anzeigenPreise & Kosten
Provision für Käufer
3,57 % inkl. MwSt
Lage
Merzig liegt verkehrsgünstig direkt an der A8 und B51 zwischen Saarbrücken und Trier. Die Stadt Luxemburg ist ca. 50 km entfernt. Die Autobahnanbindung ist in wenigen Fahrminuten gut zu erreichen. Mit seiner reizvollen Lage, direkt an der Saar, ist Merzig ein idealer Ort für vielfältige Freizeitgestaltungen und...
Das Haus
Energie & Heizung
Warum sehe ich diese Anzeige? – Du siehst diese Anzeige basierend auf Ihrer Navigation auf unserer Website und den Suchkriterien, die du verwendet hast.
Weitere Energiedaten
Energieträger
Gas, Öl
Heizungsart
Zentralheizung
Details
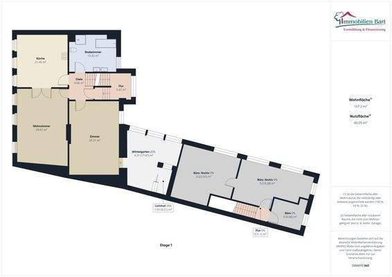
Objektbeschreibung
Diese großzügige Immobilie wurde ursprünglich im Jahr 1920 erbaut und befindet sich in zentraler Lage von Merzig. Das Anwesen wurde im Jahr 1973 durch den Anbau einer Werkstatt erweitert und im Jahr 1992 wurde das Obergeschoss dieser Werkstatt ausgebaut. Bisher als Orthopädie-Schuhtechnik mit separater Wohneinheit genutzt...
Ausstattung
Besonderheiten:
- zentrale Lage an einer tagsüber belebten Straße - ideal für Gewerbe mit viel Laufkundschaft
- Schallschutzfenster an der Straßenseite - ruhige Innenräume trotz Verkehr
- flexible Nutzung - geeignet als Praxis, Büro oder Wohnhaus
- großzügige Räume mit viel Tageslicht
- schöner, ruhiger Garten...
Weitere Informationen
Sonstiges
Unser gesamtes Immobilienangebot können Sie unter www.immobilien-bart.de einsehen.
Haben wir Ihr Interesse geweckt? Für einen unverbindlichen Besichtigungstermin stehen wir Ihnen nach vorheriger Terminabsprache gerne zur Verfügung. Bitte haben Sie Verständnis dafür, dass wir Anfragen nur bearbeiten, wenn...
Anbieter der Immobilie

Online-ID: 2mnm75s
Referenznummer: 10260
Finde Angebote wie dieses
Hier geht es zu unserem Impressum, den Allgemeinen Geschäftsbedingungen, den Hinweisen zum Datenschutz und nutzungsbasierter Online-Werbung.