

Peter Peters Immobilien GmbH &Co.KG
Herr Peter Peters
046 ···
Nr. anzeigenPreise & Kosten
Provision für Käufer
3,57 % inkl. MwSt.
Lage
Westerland ist ein Ortsteil der Gemeinde Sylt und Hauptort der Nordseeinsel.
Erleben Sie entspannte Strandtage am acht Kilometer langen Sandstrand. Wenige Meter hinter dem Strand treffen Sie auf die Fußgängerzone von Westerland, wo Sie in Boutiquen und Designerläden nach Herzenslust einkaufen können. Auch das Nachtleben...
Das Grundstück
Details
Objektbeschreibung
Beschreibung möglicher Neubau:
Es gibt eine Baugenehmigung für den Neubau von zwei Wohngebäuden, jeweils mit einer Wohneinheit, sowie die Errichtung von zwei Pkw-Stellplätzen. Die Häuser umfassen eine geplante Bebauung von je 175 m² Gesamtfläche.
Beide Wohneinheiten sind identisch geschnitten und überzeugen...
Ausstattung
So könnte ein möglicher Neubau aussehen :
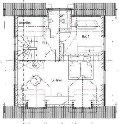
Sie betreten das Einfamilienhaus über den Eingang auf der Ostseite und gelangen in den Flur, der mit einem Gäste-WC und einer Garderobe ausgestattet ist. Von dort aus erreichen Sie den hellen Wohnbereich mit offener Küche und einer gemütlichen Essecke. Der Wohnbereich führt...
Weitere Informationen
Stichworte
GRZ: 0,15, GFZ: 0,25, Wohnfläche: 175,00 m², Nutzfläche: 175,00 m², Gesamtfläche: 175,00 m², Bundesland: Schleswig-Holstein
Anbieter der Immobilie

Online-ID: 2mnma5y
Referenznummer: 2061
Finde Angebote wie dieses
Hier geht es zu unserem Impressum, den Allgemeinen Geschäftsbedingungen, den Hinweisen zum Datenschutz und nutzungsbasierter Online-Werbung.