Ralph Dierich Projektentwicklung

Herr Ralph Dierich

neue Baugrundstücke in exponierter Lage

auf Anfrage
Kaufpreis
1 000 m²
Grundstücksfl. ca.

Der Anbieter dieses Objekts hat gegenüber der AVIV Germany GmbH als Betreiber dieses Online-Marktplatzes erklärt, nicht als Unternehmer im Sinne des § 1 KSchG zu handeln. Die im Verbraucherschutzrecht der Union verankerten Verbraucherrechte (insbesondere Informationspflichten und Rücktritts- bzw. Widerrufsrechte) finden auf den Vertrag zwischen dem Anbieter des Objekts und Ihnen (dem Interessenten) keine Anwendung.

Gewerblicher Anbieter

Der Anbieter dieses Objekts hat gegenüber der AVIV Germany GmbH als Betreiber dieses Online-Marktplatzes erklärt, als Unternehmer im Sinne des § 1 KSchG zu handeln.

AdresseStraße nicht freigegeben
07768 Freienorla 
Auf Karte ansehen

Preise & Kosten

Kaufpreis auf Anfrage Preis/m² € 130

Provision für Käufer

Bitte beachte, das Angebot beinhaltet bei Vertragsabschluss die Zahlung einer Provision. Weitere Informationen erhältst Du vom Anbieter.

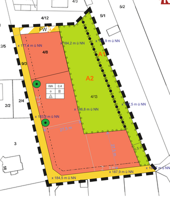
Das Grundstück

  • bebaubar nach Bebauungsplan

Details

Weitere Informationen

5 - 6 Bauplätze
In ruhiger, naturnaher Randlage von Freienorla entstehen in 2026 einige wenige
neue Bauplätze

Infrastruktur
hervorzuheben ist die Bahnabindung in Freienorla Richtung Jena und Pößneck
sowie von Orlamünde Richtung Jena und Rudolstadt/Saalfeld

Dokumente

file_pdfExposè_FreienorlaDez25.pdfangle_right

Anbieter der Immobilie

Ralph Dierich Projektentwicklung

Löhma 10, 07338 Leutenberg

user

Herr Ralph Dierich

Dein Ansprechpartner

Anbieter-Website Anbieter-Profil Anbieter-Impressum

Online-ID: 2mnmh5s

Finde Angebote wie dieses

imageimageimage

Hier geht es zu unserem Impressum, den Allgemeinen Geschäftsbedingungen, den Hinweisen zum Datenschutz und nutzungsbasierter Online-Werbung.