
WBG "Glück Auf" Gera eG
Herr/Frau Vermietungs- und Mitgliederservice
036 ···
Nr. anzeigenPreise & Kosten
Kaution
1.540,00
Warum sehe ich diese Anzeige? – Du siehst diese Anzeige basierend auf Ihrer Navigation auf unserer Website und den Suchkriterien, die du verwendet hast.
Lage
Das Wohngebiet Am Sommerbad befindet sich in Geras Stadtmitte. Die Wohngebäude wurden zwischen 1926 und 1938 errichtet. Sie erstrecken sich entlang des Ausläufers des Hofwiesenparks an der Weißen Elster. Der angrenzende Hofwiesenpark bietet neben Erholung auch zahlreiche Freizeitmöglichkeiten - ein Volleyballfeld, ein...
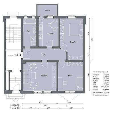
Die Wohnung
Wohnungslage
Erdgeschoss
Bezug
01.02.2026
Wohnanlage
Energie & Heizung
Warum sehe ich diese Anzeige? – Du siehst diese Anzeige basierend auf Ihrer Navigation auf unserer Website und den Suchkriterien, die du verwendet hast.
Energieausweistyp
Verbrauchsausweis
Gebäudetyp
Wohngebäude
Baujahr laut Energieausweis
1994
Wesentliche Energieträger
GAS
Gültigkeit
10.02.2019 bis 01.02.2029
Effizienzklasse
D
Endenergieverbrauch
101,00 kWh/(m²·a)
Weitere Energiedaten
Energieträger
Gas
Heizungsart
Zentralheizung
Details
Objektbeschreibung
Die Hausreinigung, der Winterdienst und die Pflege der Außenanlagen werden von der 'Glück Auf' Wohnservice GmbH übernommen und sind in den Nebenkosten enthalten.
Auf dem Grundstück befinden sich Stellplätze. Gern prüfen wir bei Bedarf die Verfügbarkeit. Die monatliche Stellplatzmiete beträgt 25 Euro.
Ausstattung
Diese großzügig geschnittene 3-Raum-Wohnung im Altbau in der Stadtmitte Geras wurde 2023 umfangreich saniert. Diese Wohnung überzeugt mit ihrer großzügig gestalteten Küche, die zukünftig genügend Platz für einen Wohn- und Essbereich bietet. Von der Küche aus gelangen Sie auf den neu angebauten Balkon. Alle Räume wurden mit...
Weitere Informationen
Stichworte
Anzahl Balkone: 1, Wohnungsnr.: 41540/620/32/1
Dokumente
Anbieter der Immobilie
Online-ID: 2mnmn5n
Referenznummer: 41540/620/32/1
Finde Angebote wie dieses
Hier geht es zu unserem Impressum, den Allgemeinen Geschäftsbedingungen, den Hinweisen zum Datenschutz und nutzungsbasierter Online-Werbung.