
Robert C. Spies Gewerbe und Investment GmbH & Co. KG
Frau Lea Schernikau
+49 ···
Nr. anzeigenPreise & Kosten
Kaution
3 Bruttomieten
Provision für Mieter
3MM
Provisionspflichtig für den Mieter! Unsere Objektangaben basieren auf den uns erteilten Informationen. Eine Haftung für die Richtigkeit und Vollständigkeit können wir deshalb nicht übernehmen. Des Weiteren gelten unsere umseitigen Geschäftsbedingu
Warum sehe ich diese Anzeige? – Du siehst diese Anzeige basierend auf Ihrer Navigation auf unserer Website und den Suchkriterien, die du verwendet hast.
Lage
Delmenhorst ist eine kreisfreie Stadt im Oldenburger Land (Niedersachsen) und gehört zur Metropolregion Bremen/Oldenburg. Die Stadt grenzt westlich an Bremen und beheimatet ca. 82.000 Einwohner. Die Immobilie ist nur wenige Autominuten von der A28, sowie der B75 entfernt, welche direkt in die Stadt Bremen führen. Das Umfeld...
Die Ladenfläche
Kategorie
Verkaufsfläche
Baujahr
1911
Bezug
Nach Vereinbarung
Energie & Heizung
Warum sehe ich diese Anzeige? – Du siehst diese Anzeige basierend auf Ihrer Navigation auf unserer Website und den Suchkriterien, die du verwendet hast.
Wärme
Energieausweistyp
Bedarfsausweis
Gebäudetyp
Nicht-Wohngebäude
Baujahr laut Energieausweis
1911
Wesentliche Energieträger
Gas
Gültigkeit
10.11.2025 bis 09.11.2035
Endenergiebedarf (Wärme)
127,79 kWh/(m²·a)
Details
Ausstattung
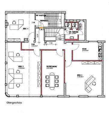
Diese flächeneffiziente Bürofläche kann grundsätzlich nach den individuellen Wünschen des Mieters aufgeteilt und ausgebaut werden.
Neben der attraktiven Lage und den hellen Räumlichkeiten besticht die Fläche außerdem durch folgende Merkmale:
Ausstattung:
- 2 Etagen über innenliegende Treppe verbunden
-...
Weitere Informationen
Sonstiges
Im Rahmen der architektonischen Möglichkeiten sind die beiden mit einer innenliegenden Treppe verbundenen Etagen variabel gestaltbar. Insofern ist es möglich, dass der zukünftige Nutzer die Bürofläche nach seinen individuellen Bedürfnissen konfigurieren kann.
Der Vermieter geht gerne nach Bedarf auf...
Anbieter der Immobilie
Robert C. Spies Gewerbe und Investment GmbH & Co. KG
Domshof 21, 28195 Bremen
Online-ID: 2mnp85a
Referenznummer: 33515/1/1/1
Finde Angebote wie dieses
Hier geht es zu unserem Impressum, den Allgemeinen Geschäftsbedingungen, den Hinweisen zum Datenschutz und nutzungsbasierter Online-Werbung.