
ohne-makler.net - Immobilien selbst vermarkten
Angebot von DAN-WOOD Fertighaus Tatjana Wyss
+43 ···
Nr. anzeigenPreise & Kosten
Provision für Käufer
provisionsfrei
Lage
Auf Ihrem Grundstück oder in...
Güssing: Ca. 2.600m² Lage vollkommen eben, . Grundstücksgrößen und Grundstückslagen frei wählbar. Größen von 500m² - 1500m²
Hier sind die Baugründe der Extraklasse! In bester Lage und mit einem atemberaubenden Blick auf die wunderschöne Burg Güssing!
Güssing bietet ein zukunftssicheres...
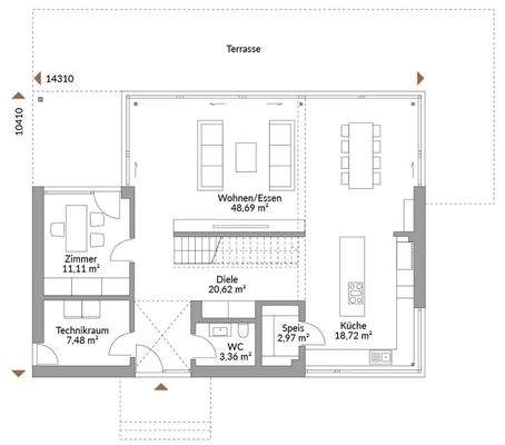
Das Haus
Kategorie
Stadthaus
Baujahr
2026
Bezug
nach Absprache
Energie & Heizung
Warum sehe ich diese Anzeige? – Du siehst diese Anzeige basierend auf Ihrer Navigation auf unserer Website und den Suchkriterien, die du verwendet hast.
Weitere Energiedaten
Heizungsart
Fußbodenheizung, Luft-/Wasser-Wärmepumpe
Details
Objektbeschreibung
Effizienz trifft emotionale Intelligenz!
Ein Gebäude ist mehr als ein Projekt - es ist ein Statement.
Vision by Danwood steht für Architektur mit Haltung. Sie ist konzipiert für Menschen, die Verantwortung tragen und Werte sichtbar machen.
Jedes Haus entsteht nach einem architektonisch anspruchsvollen Konzept: klar...
Ausstattung
Gäste-WC, Parkett, Fliesen
Bemerkungen:
VISION Schlüsselfertig Bau- und Leistungsbeschreibung - Häuser auf Bodenplatte!
Leistungsumfang
RAUMHÖHEN: EG 3,05m DG 2,67m
Technikpaket VISION inkl. Fußbodenheizung (leistungsvariable Sole Wasser Wärmepumpe mit integriertem...
Weitere Informationen
Sonstiges
Heizungsart: Fußbodenheizung
Energieträger: Luft-/Wasserwärme
Energieausweis nicht vorhanden
Fordern Sie eine Baubeschreibung und Kataloge an!
Dazu ist es notwendig das Sie Telefonnummer, Mailadresse und Adresse anführen.
Vielen Dank!
Makleranfragen nicht erwünscht.
ohne-makler...
Dokumente
Anbieter der Immobilie
Online-ID: 2mnq55j
Referenznummer: 394561
Finde Angebote wie dieses
Günstige Immobilienfinanzierung einfach online berechnen
Persönliches Angebot berechnenWarum sehe ich diese Werbung? – Du siehst diese Werbung basierend auf Deiner Navigation auf unserer Website und der von Dir verwendeten Suchkriterien.
Diese Werbung wird bezahlt von durchblicker
Werbung melden
Hier geht es zu unserem Impressum, den Allgemeinen Geschäftsbedingungen, den Hinweisen zum Datenschutz und nutzungsbasierter Online-Werbung.