

Jana Geyer Immobilienagentur
Frau Jana Geyer
034 ···
Nr. anzeigenPreise & Kosten
Provision für Käufer
Der Gesamtkaufpreis beträgt 95.000,00 Euro und setzt sich zusammen aus dem Kaufpreis für die Wohnung in Höhe von 85.000,00 Euro und dem Kaufpreis für den TG-Stellplatz (kein Duplex) in Höhe von 10. Weitere Informationen siehe Provisionshinweis.
Lage
Mocherwitz gehört zum Schönwölkauer Ortsteil Hohenroda und liegt südlich von Hohenroda, zwischen den Städten Eilenburg und Delitzsch an der Kreisstraße 7442, die den Ort mit der Staatsstraße 4 und der Bundesstraße 2 verbindet. Südlich führt die Bahnstrecke Halle-Cottbus am Ort vorbei, an der sich der Haltepunkt Hohenroda...
Die Wohnung
Wohnungslage
Erdgeschoss
Bezug
sofort
Derzeitige Nutzung
vermietet
Energie & Heizung
Warum sehe ich diese Anzeige? – Du siehst diese Anzeige basierend auf Ihrer Navigation auf unserer Website und den Suchkriterien, die du verwendet hast.
Weitere Energiedaten
Heizungsart
Zentralheizung
Details
Objektbeschreibung
Kurzbeschreibung
NAHE KROSTITZ * RUHIGE WOHNANLAGE IN MOCHERWITZ * APARTMENT mit 2 WOHNRÄUMEN und GROSSEM BALKON * TG-STELLPLATZ * VERMIETET
Objekt
ENERGIEAUSWEIS
Der Energieausweis liegt seitens des Anbieters noch nicht vor.
---------------
Bei dem Objekt handelt es sich um eine gepflegte...
Ausstattung
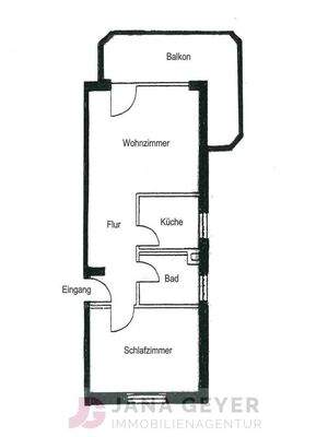
gut geschnittene 2-Zimmer-Wohnung mit:
* Eingangsbereich, Flur
* großer offener Wohn-/Essbereich
* Schlafzimmer
* separate Küche
* Tageslichtbad mit Wanne
* sonniger Balkon (Ausrichtung West)
* Laminat- bzw. Fliesenböden
* WM-Anschluss im Bad
* Abstellraum im Kellergeschoss
*...
Preisinformation
Soll-Mieteinnahmen pro Jahr: 4.440,00 EUR
Ist-Mieteinnahmen pro Jahr: 4.440,00 EUR
Weitere Informationen
Provisionshinweis
Der Gesamtkaufpreis beträgt 95.000,00 Euro und setzt sich zusammen aus dem Kaufpreis für die Wohnung in Höhe von 85.000,00 Euro und dem Kaufpreis für den TG-Stellplatz (kein Duplex) in Höhe von 10.000,00 Euro.
Bei Abschluss eines Kaufvertrages ist eine Gesamtprovision in Höhe von pauschal 6.000,00...
Anbieter der Immobilie
Jana Geyer Immobilienagentur
Naundorfer Straße 5, 04838 Zschepplin

Online-ID: 2mnrp56
Referenznummer: #803
Finde Angebote wie dieses
Hier geht es zu unserem Impressum, den Allgemeinen Geschäftsbedingungen, den Hinweisen zum Datenschutz und nutzungsbasierter Online-Werbung.