Version: 8.24.0Navigation ĂĽberspringen
iad Deutschland GmbH
1.250 €
54,5 m² Lagerfläche

Werkstatt zur Miete
1.250 €
54,5 m² Lagerfläche

Gewerbeeinheit mit Bürofläche im 1. OG und Lager im EG - Nähe Universitätsklinikum Essen

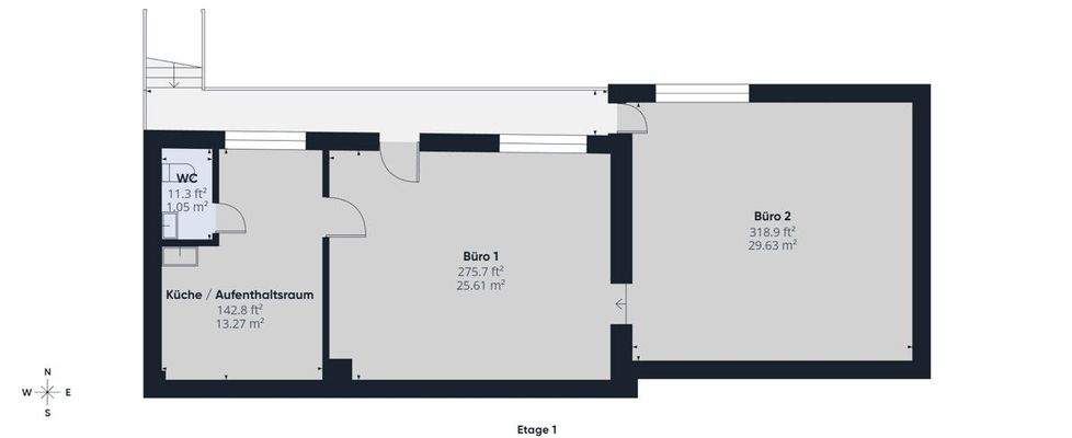
Zur Vermietung steht eine Büro- und Gewerbeeinheit mit einer Bürofläche von ca. 69,56 m² sowie einer zusätzlichen Lagerfläche im Erdgeschoss mit ca. 54,49 m².

Die Büroeinheit befindet sich im 1. Obergeschoss eines Vier-Familienhauses und ist über einen separaten, eigenen Zugang erreichbar. Die Fläche ist neu saniert und umfasst drei Räumlichkeiten sowie eine Toilette.

Das Lager ist im Erdgeschoss gelegen und verfügt über eine Deckenhöhe von ca. 3,20 m. Das Zugangstor hat eine Höhe von ca. 2,50 m sowie eine Breite von ca. 3,06 m.

Die Immobilie befindet sich im Hinterhof eines Gebäudes in 45147 Essen, in unmittelbarer Nähe zur Universitätsklinik Essen, welche in etwa 3 Gehminuten erreichbar ist.

Eine Nutzung als Kfz-, Reifen- oder vergleichbare Werkstatt ist nicht zulässig.
Das Lager kann nicht separat, sondern ausschlieĂźlich zusammen mit der BĂĽroeinheit angemietet werden.

Alle Flächenangaben beruhen auf Angaben des Eigentümers. Eine Haftung für deren Richtigkeit und Vollständigkeit wird nicht übernommen.

Virtueller 360-Grad-Rundgang:
Möchten Sie die Gewerbefläche in einem virtuellen Rundgang entdecken? Fordern Sie jetzt ganz einfach einen interaktiven 360-Grad-Rundgang an. Kontaktieren Sie uns, um den Zugang zum Rundgang zu erhalten!

Merkmale

Bürofläche ca. 69,56 m²

Lage der BĂĽroeinheit: 1. Obergeschoss

Drei Büroräume

Separate Zugangsmöglichkeit

Neu sanierte Bürofläche

Isolierverglaste Fenster

WC-Anlage

Lagerfläche ca. 54,49 m²

Lage des Lagers: Erdgeschoss

Deckenhöhe Lager ca. 3,20 m

Lagertor ca. 2,50 m Höhe, ca. 3,06 m Breite

Grundrisse

Grundrisse
1 / 2

Realisiere Dein Projekt

Bausubstanz und Energie

Der Anbieter hat keine Informationen zum Energieverbrauch bereit gestellt.
  • Zustand der Immobilierenoviert / saniert
MediumRectangleTop

Mietkosten

Nettomiete
1.250 €
Nebenkosten
80 €
Provision fĂĽr Mieter
3 Nettokaltmieten zzgl. 19% MwSt.
Kaution
3 Nettokaltmieten zzgl. 19% MwSt.
Weitere Preisinformationen
Nettokaltmiete: 1.250,00 EUR

Lage

address-icon
Holsterhausen, Essen / Holsterhausen (45147)
Der Anbieter hat die genaue Adresse nicht freigegeben
Die Gewerbeeinheit liegt in Essen, in fußläufiger Entfernung zur Universitätsklinik Essen.
Die Lage bietet eine gute Anbindung an den öffentlichen Personennahverkehr sowie an das innerstädtische und überregionale Straßennetz. Einrichtungen des täglichen Bedarfs befinden sich im näheren Umfeld.

Weitere Informationen

Sonstiges Sonstige Hinweise / Rechtliche Hinweise

Alle Angaben und Informationen zu diesem Objekt beruhen auf den uns vom Eigentümer bzw. Vermieter erteilten Auskünften. Eine Gewähr für die Richtigkeit, Vollständigkeit und Aktualität dieser Angaben wird von der ID Deutschland GmbH nicht übernommen. Sämtliche Objektangaben sind vom Interessenten eigenständig zu prüfen. Irrtümer bleiben vorbehalten. Dieses Angebot ist freibleibend.

Mit der Anfrage bei der ID Deutschland GmbH und der anschlieĂźenden Inanspruchnahme unserer Maklerdienstleistungen kommt ein Maklervertrag zwischen dem Interessenten und der ID Deutschland GmbH zustande.

Sofern aufgrund unserer Tätigkeit ein wirksamer Mietvertrag über das angebotene Objekt mit der Eigentümerseite zustande kommt, verpflichtet sich der Mieter zur Zahlung einer Maklercourtage in Höhe von drei Monats-Kaltmieten zuzüglich der gesetzlichen Mehrwertsteuer (derzeit 19 %) an die ID Deutschland GmbH. Die Provision ist mit Abschluss des Mietvertrages verdient und fällig.

Besichtigungshinweis

Die ID Deutschland GmbH ist durch den EigentĂĽmer mittels eines schriftlichen Makleralleinauftrages mit der Vermittlung der Immobilie beauftragt.
Ein Betreten des Grundstücks oder der Mieträume ist ausschließlich nach vorheriger Terminvereinbarung und in Begleitung eines Mitarbeiters der ID Deutschland GmbH gestattet.

Gerne stehen wir Ihnen zur Vereinbarung eines individuellen Besichtigungstermins zur Verfügung. Stichworte Wohnfläche: 69,56 m², Lagerfläche: 54,49 m², Gesamtfläche: 124,05 m²

Weitere Services

Lust auf eine Besichtigung?
Eine Frage zur Immobilie?
Nachricht hinzufĂĽgen
Mit der Nutzung der oben angegebenen Telefonnummer oder durch Klicken auf „Kontaktieren“ akzeptierst Du die Allgemeinen Nutzungsbedingungen, denen Du jederzeit widersprechen kannst. Weitere Informationen zum Datenschutz

Ăśber den Anbieter

SchleusenstraĂźe 15-17, 60327 Frankfurt am Main
partner badge
3 Jahre Partnerschaft
Herr Andreas EickDein Kontakt
Online-ID: 2mnru5x
Referenznummer: iad-4053
iad Deutschland GmbH
iad Deutschland GmbH
Bewertung: 4 von 5 Sternen
Nachricht hinzufĂĽgen
Mit der Nutzung der oben angegebenen Telefonnummer oder durch Klicken auf „Kontaktieren“ akzeptierst Du die Allgemeinen Nutzungsbedingungen, denen Du jederzeit widersprechen kannst. Weitere Informationen zum Datenschutz
MediumRectangleTop
MediumRectangleBottom
MediumRectangleTop
Wie zufrieden bist du mit dieser Seite (nicht mit der Immobilie selbst)?