
Rossknecht Immobilien UG
Franziska Rossknecht
017 ···
Nr. anzeigenPreise & Kosten
Provision für Käufer
provisionsfrei
Lage
Am Stadtrand, mitten im Grünen.
Die Pinneberger Straße 140 markiert den Übergang zwischen Stadt und Natur - hier endet Wedel und beginnt die offene Landschaft. Hinter dem Haus erstrecken sich Felder, Wiesen und weite Horizonte, die zu Spaziergängen und Ruhe einladen.
Trotz der ruhigen Lage ist die Anbindung...
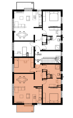
Die Wohnung
Wohnungslage
1. Geschoss
Bezug
01.02.2026
Wohnanlage
Energie & Heizung
Warum sehe ich diese Anzeige? – Du siehst diese Anzeige basierend auf Ihrer Navigation auf unserer Website und den Suchkriterien, die du verwendet hast.
Energieausweistyp
Verbrauchsausweis
Gebäudetyp
Wohngebäude
Baujahr laut Energieausweis
2025
Wesentliche Energieträger
Strom
Gültigkeit
16.02.2025 bis 15.02.2035
Effizienzklasse
A+
Endenergieverbrauch
19,00 kWh/(m²·a)
Weitere Energiedaten
Energieträger
Elektro, Solar
Haustyp
KfW 55
Heizungsart
Fußbodenheizung, Luft-/Wasser-Wärmepumpe
Details
Objektbeschreibung
Wohnen, wo Wedel endet - Neubauensemble in der Pinneberger Straße 140
Am ruhigen Ortsrand von Wedel entsteht ein Neubauensemble, das modernes Wohnen mit der Weite der Natur verbindet. Direkt vor der Haustür beginnen die Felder - und mit ihnen das Gefühl von Freiheit. Die Architektur ist modern, hell und funktional...
Ausstattung
Moderne 3-Zimmer-Wohnungen mit stilvoller Ausstattung und Terrasse
Die vier 3-Zimmer-Wohnungen (jeweils ca. 81,76 m²) bieten zeitgemäßen Wohnkomfort mit durchdachten Grundrissen und einer hochwertigen Ausstattung.
Offene Wohn- und Essbereiche mit voll ausgestatteter Einbauküche (inkl...
Preisinformation
1 Stellplatz
Weitere Informationen
Stichworte
Stellplatz vorhanden, Anzahl der Schlafzimmer: 2, Anzahl der Badezimmer: 1, Anzahl Balkone: 1, Balkon-Terrassen-Fläche: 5,58 m², Bundesland: Schleswig-Holstein, 1 Etagen
Anbieter der Immobilie
Rossknecht Immobilien UG
Neuer Wall 10, 20354 Hamburg
Online-ID: 2mnrx5g
Referenznummer: WE3 1. OG/1
Finde Angebote wie dieses
Hier geht es zu unserem Impressum, den Allgemeinen Geschäftsbedingungen, den Hinweisen zum Datenschutz und nutzungsbasierter Online-Werbung.