

IMMO Konzept
Herrn Mike Paschen
020 ···
Nr. anzeigenPreise & Kosten
Provision für Käufer
3,57 % incl. MwSt.
Lage
Das Haus befindet sich in zentraler Lage vom Stadtteil Hochheide.
Einkaufsmöglichkeiten, Schulen, Kindergärten, Banken, Ärzte usw. in unmittelbarer Nähe.
Gute Anbindung an die A40, A42 und A59.
Die Wohnung
Wohnungslage
6. Geschoss
Bezug
nach Vereinbarung
Derzeitige Nutzung
vermietet
Wohnanlage
Energie & Heizung
Warum sehe ich diese Anzeige? – Du siehst diese Anzeige basierend auf Ihrer Navigation auf unserer Website und den Suchkriterien, die du verwendet hast.
Energieausweistyp
Verbrauchsausweis
Gebäudetyp
Wohngebäude
Baujahr laut Energieausweis
1971
Gültigkeit
26.01.2018 bis 27.01.2028
Effizienzklasse
E
Endenergieverbrauch
157,00 kWh/(m²·a) - Warmwasser enthalten
Weitere Energiedaten
Energieträger
Fernwärme
Details
Objektbeschreibung
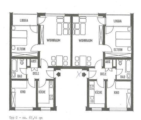
Diese gepflegte 3 ½ Raum Wohnung mit Balkon befindet sich in der 6. Etage eines 12 Familienhauses.
Die Wohnung verfügt über ein Wohnzimmer, 2 Schlafzimmer, eine Küche und ein Bad mit Wanne und Dusche.
Der Balkon ist vom Wohn- und Schlafzimmer begehbar.
Ausstattung
Die Wohnung verfügt über eine einfache zeitgemäße Ausstattung.
Preisinformation
Ist-Mieteinnahmen pro Jahr: 6.000,00 EUR
Weitere Informationen
Stichworte
Anzahl der Schlafzimmer: 2, Anzahl der Badezimmer: 1, Anzahl Balkone: 1, 6 Etagen, Lage im Wohngebiet
Anbieter der Immobilie
IMMO Konzept
Maybachstr. 14, 46049 Oberhausen

Online-ID: 2mnvn5k
Referenznummer: 36471867
Finde Angebote wie dieses
Hier geht es zu unserem Impressum, den Allgemeinen Geschäftsbedingungen, den Hinweisen zum Datenschutz und nutzungsbasierter Online-Werbung.