
Flathopper GmbH
Frau Lena Schmid
004 ···
Nr. anzeigenPreise & Kosten
Kaution
3.400,00 2 MM
Warum sehe ich diese Anzeige? – Du siehst diese Anzeige basierend auf Ihrer Navigation auf unserer Website und den Suchkriterien, die du verwendet hast.
Lage
Busse 291 und 744 ab Dachau Theodor-Heuss-StraßeS-Bahn S2 oder RB, RE ab Dachau Bahnhof fußläufig erreichbar
Wohnen auf Zeit
Kategorie
Wohnung
Baujahr
1989
Frei
ab 01.04.2026
Max. Personenanzahl
2
Mindestmietdauer
6 Monate
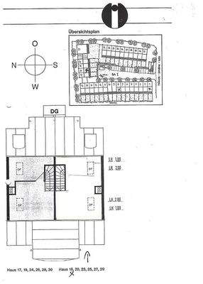
Wohnungslage
2. Geschoss
Energie & Heizung
Warum sehe ich diese Anzeige? – Du siehst diese Anzeige basierend auf Ihrer Navigation auf unserer Website und den Suchkriterien, die du verwendet hast.
Energieausweistyp
Bedarfsausweis
Gebäudetyp
Wohngebäude
Baujahr laut Energieausweis
1989
Wesentliche Energieträger
GAS
Gültigkeit
24.08.2019 bis 23.08.2029
Effizienzklasse
F
Weitere Energiedaten
Energieträger
Gas
Details
Objektbeschreibung
Möbliertes Wohnen auf Zeit:
Exklusive 2-Zimmer Maisonette-Wohnung mit Balkon in Dachau
Die Wohnung befindet sich im Osten von Dachau und liegt daher in einem der beliebtesten Viertel von Dachau (Unteraugustenfeld).
Die Wohnung selbst befindet sich im 2. und im 3. Obergeschoss (Dachgeschoss). Zur Wohnung...
Ausstattung
Abstellraum
Balkon
exklusiv
Kfz-Unterbingung
möbliert
provisionfrei
ruhig gelegen
verkehrsgünstig
zentral gelegen
Bettwäsche
Couch
Doppelbett
Dusche
Einbauküche
Fliesen
Handtücher
Internet
Kaffeemaschine
Kühl-/...
Preisinformation
1 Tiefgaragenstellplatz
Weitere Informationen
Stichworte
Anzahl der Schlafzimmer: 1, Anzahl der Badezimmer: 1, Anzahl Balkone: 1, 2 Etagen, nur Nichtraucher, Mindestmietdauer: 6 Monate
Anbieter der Immobilie
Flathopper GmbH
Pfarrer-Klaas-Str. 1, 83059 Kolbermoor
Online-ID: 2mnvt5j
Referenznummer: AG110429
Finde Angebote wie dieses
Hier geht es zu unserem Impressum, den Allgemeinen Geschäftsbedingungen, den Hinweisen zum Datenschutz und nutzungsbasierter Online-Werbung.