

Jones Lang LaSalle SE - Office Leasing Düsseldorf
Frau Katharina Ufelmann
+49 ···
Nr. anzeigenPreise & Kosten
Provision für Mieter
provisionspflichtig für den Mieter/Käufer
Warum sehe ich diese Anzeige? – Du siehst diese Anzeige basierend auf Ihrer Navigation auf unserer Website und den Suchkriterien, die du verwendet hast.
Lage
Die Liegenschaft befindet sich in zentraler Innenstadtlage von Düsseldorf. Dieser Standort zeichnet sich besonders durch eine sehr gute Infrastruktur und ÖPNV Anbindung aus. Zahlreiche Einkaufsmöglichkeiten, Geschäfte des alltäglichen Bedarfs sowie Restaurants und Ärzte sind in unmittelbarer Nähe zu finden. Die Altstadt...
Büro-/Praxisfläche
Kategorie
Bürofläche
Baujahr
2000
Bezug
Sofort
Energie & Heizung
Warum sehe ich diese Anzeige? – Du siehst diese Anzeige basierend auf Ihrer Navigation auf unserer Website und den Suchkriterien, die du verwendet hast.
Wärme
Strom
Energieausweistyp
Verbrauchsausweis
Gebäudetyp
Nicht-Wohngebäude
Wesentliche Energieträger
BLOCK
Gültigkeit
03.07.2014 bis 02.07.2024
Endenergieverbrauch (Wärme)
143,30 kWh/(m²·a)
Endenergieverbrauch (Strom)
102,10 kWh/(m²·a)
Weitere Energiedaten
Energieträger
Blockheizkraftwerk
Details
Objektbeschreibung
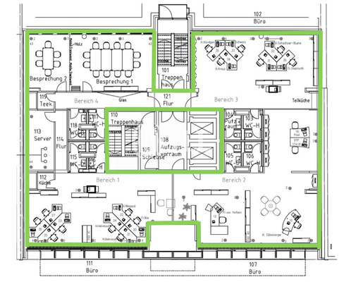
Das 9-geschossige Büro- und Geschäftshaus befindet sich in zentraler Lage am Fuße der Königsallee. Der sehr effiziente Grundriss und die hochwertige Ausstattung vervollständigen dieses Angebot.
Preisinformation
18 Stellplätze, Miete je: 110,00 EUR
Weitere Informationen
Stichworte
Gesamtfläche: 1.728,45 m²
Anbieter der Immobilie
Jones Lang LaSalle SE - Office Leasing Düsseldorf
Dreischeibenhaus 1, 40211 Düsseldorf

Online-ID: 2mnw95e
Referenznummer: 4@of74516@14@0
Finde Angebote wie dieses
Hier geht es zu unserem Impressum, den Allgemeinen Geschäftsbedingungen, den Hinweisen zum Datenschutz und nutzungsbasierter Online-Werbung.