

ImmoNOW Schoenwälder
Herr Florian Bach
+49 ···
Nr. anzeigenPreise & Kosten
Provision für Käufer
provisionsfrei
Lage
Die Traumvilla befindet sich in einer begehrten Lage von Berlin, im Bezirk Treptow-Köpenick. Genauer gesagt liegt sie im westlichen Teil des Stadtteils Baumschulenweg, in der Ortslage Späthsfelde.
Die Umgebung des Baumschulenwegs ist geprägt von einer ruhigen und familienfreundlichen Atmosphäre. Hier finden sich viele...
Das Haus
Kategorie
Villa
Baujahr
2021
Bezug
nach Absprache
Energie & Heizung
Warum sehe ich diese Anzeige? – Du siehst diese Anzeige basierend auf Ihrer Navigation auf unserer Website und den Suchkriterien, die du verwendet hast.
Energieausweistyp
Verbrauchsausweis
Gebäudetyp
Wohngebäude
Wesentliche Energieträger
Gas
Gültigkeit
12.03.2025 bis 12.03.2035
Effizienzklasse
B
Endenergieverbrauch
70,40 kWh/(m²·a)
Weitere Energiedaten
Energieträger
Gas
Heizungsart
Fußbodenheizung, offener Kamin
Details
Objektbeschreibung
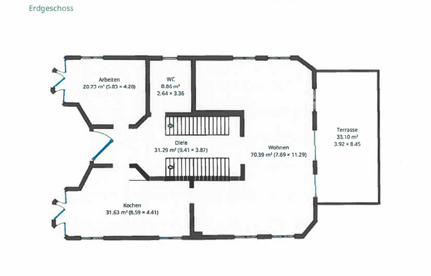
Diese Traumvilla in Massivbauweise bietet Ihnen auf einer Gesamtfläche von 336,73 m² luxuriöses Wohnen auf höchstem Niveau. Das neuwertige Haus erstreckt sich über zwei Etagen und verfügt über insgesamt sechs Zimmer und drei Bäder.
Bereits beim Betreten dieser Residenz erwartet Sie ein beeindruckendes Entree mit...
Ausstattung
- 3-fach isolierte Kunststofffenster
- hochwertige Böden: Stein- und Granitfliesen
- Fußbodenheizung im gesamten Haus
- neue Solarthermie
- Massivbauweise: Stahlbeton
- Außenputz aus Protonsteinen
- Sanitär von VitrA
- 3 tagesbelichtete Bäder
- Jacuzzi
- 2 Balkone
- große Veranda mit...
Preisinformation
3 Stellplätze
Weitere Informationen
Stichworte
Stellplatz vorhanden, Nutzfläche: 452,35 m², Anzahl der Schlafzimmer: 4, Anzahl der Badezimmer: 3, Anzahl Balkone: 1, Balkon-Terrassen-Fläche: 29,77 m², Bundesland: Berlin, 2 Etagen, modernisiert: 2021, Distanz zum Flughafen: 17.33, Distanz zum Hauptbahnhof: 3.36, Distanz zum Bus: 3.4
Anbieter der Immobilie
ImmoNOW Schoenwälder
Kurfürstendamm 194, 10707 Berlin

Online-ID: 2mnw95h
Referenznummer: 2345
Finde Angebote wie dieses
Hier geht es zu unserem Impressum, den Allgemeinen Geschäftsbedingungen, den Hinweisen zum Datenschutz und nutzungsbasierter Online-Werbung.