

Kreissparkasse Steinfurt Immobilien-Center
Herr Manuel Martinez Garcia
054 ···
Nr. anzeigenPreise & Kosten
Provision für Käufer
provisionsfrei
Lage
Baulücke in Sackgassenendlage, Ortsteil Dorfbauern
Die Stadt Emsdetten im nördlichen Münsterland bietet als Mittelzentrum mit ca. 36.000 Einwohnern eine hervorragende Infrastruktur mit entsprechenden Kindergärten, Schulen, Ärzten und Freizeiteinrichtungen. Neben der belebten Einkaufszone mit zahlreicher Gastronomie...
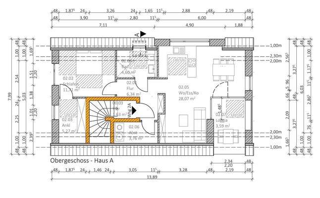
Die Wohnung
Wohnungslage
Dachgeschoss
Wohnanlage
Energie & Heizung
Warum sehe ich diese Anzeige? – Du siehst diese Anzeige basierend auf Ihrer Navigation auf unserer Website und den Suchkriterien, die du verwendet hast.
Energieausweis: für diesen Gebäudetyp nicht notwendig
Weitere Energiedaten
Heizungsart
Luft-/Wasser-Wärmepumpe
Details
Objektbeschreibung
Am Ende einer ruhigen und verkehrsarmen Wohnstraße wird im Bereich einer klassischen Baulücke in Kürze mit dem Bau dieses architektonisch ansprechenden Hauses mit lediglich zwei Wohnungen begonnen werden.
Die clevere Raumaufteilung dieser gemütlichen Zweizimmerwohnung, zu der ein großzügiger Wohn- und Essbereich mit...
Ausstattung
- schlüsselfertige Erstellung (ohne Malerarbeiten)
- KfW-Effizienzhaus-Standard 40 EE
- Wohnfläche des Wohn- Koch und Essbereichs: ca. 28 m²
- Tageslichtbad mit bodengleicher Dusche
- Schlafzimmer mit Ankleidebereich
- Abstellraum mit Waschmaschinenanschluss
- Fußbodenheizung
- Kunststofffenster mit...
Weitere Informationen
Sonstiges
- schlüsselfertige Erstellung gemäß Bauleistungsbeschreibung
- KfW-Effizienzhaus-Standard 40 EE
- Luft-Wasser-Wärmepumpe
- zentrale Lüftungsanlage mit Wärmerückgewinnung
- Grundstücksgröße: 685 m² (laut Teilungsentwurf)
- WEG-Teilung, Miteigentumsanteil 216,288 / 1.000
- Baubeginn...
Anbieter der Immobilie

Online-ID: 2mnwc5c
Referenznummer: 12497-E
Finde Angebote wie dieses
Hier geht es zu unserem Impressum, den Allgemeinen Geschäftsbedingungen, den Hinweisen zum Datenschutz und nutzungsbasierter Online-Werbung.