

IMAXX Gesellschaft für Immobilien-Marketing mbH
Herr Lorenz Martin
060 ···
Nr. anzeigenPreise & Kosten
Provision für Käufer
5,95% inkl. gesetzl. MwSt.
Abschreibung/Anlage
Denkmalschutz-Afa
Lage
Im nördlichen Teil des Wetteraukreises liegt die Stadt Butzbach, die sich in die Ortsteile Bodenrod, Ebersgöns, Fauerbach v.d.H., Griedel, Hausen-Oes, Hoch-Weisel, Kirch-Göns, Maibach, Münster, Nieder-Weisel, Ostheim, Pohl-Göns und Wiesental unterteilt. Die aktuelle Einwohnerzahl liegt bei rund 27.531.
Butzbach verfügt...
Die Ladenfläche
Kategorie
Verkaufsfläche
Baujahr
1952
Bezug
sofort
Energie & Heizung
Warum sehe ich diese Anzeige? – Du siehst diese Anzeige basierend auf Ihrer Navigation auf unserer Website und den Suchkriterien, die du verwendet hast.
Wärme
Energieausweistyp
Verbrauchsausweis
Gebäudetyp
Nicht-Wohngebäude
Wesentliche Energieträger
Gas
Gültigkeit
13.03.2024 bis 12.03.2034
Endenergieverbrauch (Wärme)
66,70 kWh/(m²·a)
Weitere Energiedaten
Energieträger
Gas
Details
Objektbeschreibung
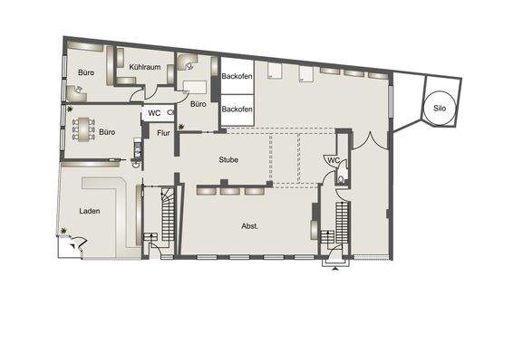
In Butzbach-Pohl-Göns steht diese großzügige Gewerbeeinheit mit insgesamt ca. 447?m² zum Verkauf. Die Fläche befindet sich im Erdgeschoss eines Wohn- und Geschäftshauses, direkt an der stark frequentierten Ortsdurchfahrtsstraße - eine attraktive Lage mit guter Sichtbarkeit und Laufkundschaft.
Die ca. 342?m² große...
Preisinformation
3 Stellplätze
Weitere Informationen
Stichworte
Garage vorhanden, Stellplatz vorhanden, Gesamtfläche: 447,00 m², Bundesland: Hessen
Anbieter der Immobilie
IMAXX Gesellschaft für Immobilien-Marketing mbH
Plockstraße 6-10, 35390 Gießen

Online-ID: 2mp2b5d
Referenznummer: 47607
Finde Angebote wie dieses
Hier geht es zu unserem Impressum, den Allgemeinen Geschäftsbedingungen, den Hinweisen zum Datenschutz und nutzungsbasierter Online-Werbung.