

EDE INVEST GmbH & Co. KG
Frau Chiara Mauz
+49 ···
Nr. anzeigenPreise & Kosten
Provision für Käufer
3,57 % inkl. MwSt. (3,00 % netto) inkl. MwSt.
Lage
Gröbenzell zählt zu den begehrtesten Wohnorten im Münchner Westen. Die Gemeinde verbindet eine hervorragende Infrastruktur, ausgezeichnete Verkehrsanbindung und idyllische, grüne Umgebung zu einer idealen Mischung aus Stadtnähe und Lebensqualität.
Dank der direkten Anbindung an die Metropolregion München bietet...
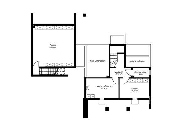
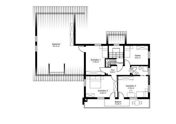
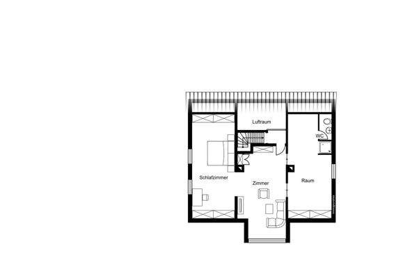
Das Haus
Kategorie
Einfamilienhaus
Baujahr
1982
Energie & Heizung
Warum sehe ich diese Anzeige? – Du siehst diese Anzeige basierend auf Ihrer Navigation auf unserer Website und den Suchkriterien, die du verwendet hast.
Energieausweistyp
Bedarfsausweis
Gebäudetyp
Wohngebäude
Baujahr laut Energieausweis
1980
Wesentliche Energieträger
OEL
Gültigkeit
bis 04.05.2035
Effizienzklasse
E
Endenergiebedarf
141,24 kWh/(m²·a)
Details
Objektbeschreibung
Außergewöhnliches Grundstück mit Einfamilienhaus in Gröbenzell.
In einer der begehrtesten und ruhigsten Lagen von Gröbenzell, umgeben von weitläufigen Feldern und direkt am idyllischen Gröbenbach, liegt dieses außergewöhnliche Villenanwesen auf einem traumhaften Grundstück von rund 10.000 m². Das parkähnliche Areal mit...
Ausstattung
- Großzügiges Einfamilienhaus auf ca. 2.000 m² Teilgrundstück
- Restgrundstück von ca. 8.000 m² mit Weiher - optional zur Mitnutzung, Pacht oder zum zusätzlichen Erwerb
- Traumhafte Lage direkt am Gröbenbach
- Perfekt für Naturliebhaber
- Zwei private Weiher (als Fischweiher oder Schwimmteich...
Weitere Informationen
Sonstiges
Alle in diesem Exposé verwendeten Angaben beruhen auf Informationen von Dritten (z.B. Eigentümer, Hausverwaltung, etc.) und daher freibleibend und ohne jegliche Gewähr. Zahlenangaben sind immer als ca-Angaben zu verstehen. Irrtum, Änderungen, Zwischenverkauf oder Zwischenvermietung bleiben vorbehalten. Die...
Anbieter der Immobilie
EDE INVEST GmbH & Co. KG
Bavariaring 18, 80336 München

Online-ID: 2mp355g
Referenznummer: 6345_2
Finde Angebote wie dieses
Hier geht es zu unserem Impressum, den Allgemeinen Geschäftsbedingungen, den Hinweisen zum Datenschutz und nutzungsbasierter Online-Werbung.