

Costa Blanca Immobilien
Frau Katja Priemer
+49 ···
Nr. anzeigenPreise & Kosten
Provision für Käufer
provisionsfrei
Die Wohnung
Kategorie
Apartment
Wohnanlage
Details
Objektbeschreibung
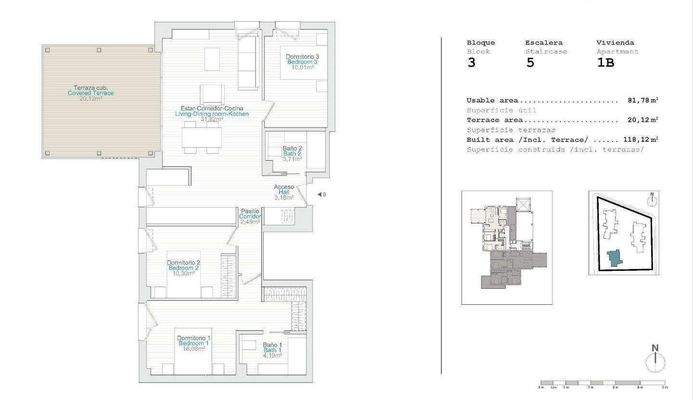
Diese neu gebaute Wohnanlage in El Vergel bei Denia an der Costa Blanca vereint modernes Wohnen mit nachhaltigem Design und exklusiven Annehmlichkeiten. Die Apartments verfügen über eine Wohnfläche von 97?m² und eine nutzbare Baufläche von 81?m². Jedes Apartment bietet drei Schlafzimmer, zwei Badezimmer, ein offenes Wohn- und...
Weitere Informationen
Unsere Homepage
Schauen Sie doch bitte auch auf unserer Homepage:
www.neubaucostablanca.de
Hier finden Sie eine große Auswahl toller Objekte.
Durch unsere Kooperation mit allen Bauträgern an der Costa Blanca können Sie mit uns jederzeit jedes Neubauobjekt besichtigen. Ein deutschsprachiger Immobilienmakler wird...
Anbieter der Immobilie

Online-ID: 2mp4g5z
Referenznummer: CBI-G-7794X
Finde Angebote wie dieses
Hier geht es zu unserem Impressum, den Allgemeinen Geschäftsbedingungen, den Hinweisen zum Datenschutz und nutzungsbasierter Online-Werbung.