

Papst Immobilien GmbH
Herr Patrick Großschädl
065 ···
Nr. anzeigenPreise & Kosten
Kaution
3 BMM Überweisung
Provision für Käufer
3 % zzgl. 20% MwSt.
Das Renditeobjekt
Geschosse
1 Geschoss
Energie & Heizung
Warum sehe ich diese Anzeige? – Du siehst diese Anzeige basierend auf Ihrer Navigation auf unserer Website und den Suchkriterien, die du verwendet hast.
Heizwärmebedarf (HWB)
200,00 kWh/(m²·a)
Weitere Energiedaten
Energieträger
Gas
Heizungsart
Zentralheizung
Details
Objektbeschreibung
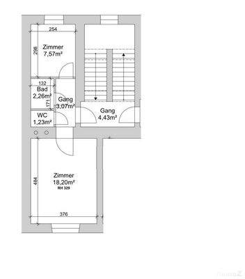
Wir verkaufen eine vermietete 1 Zimmer Mietwohnung zzgl. Küche
Vorraum, Küche (möbliert), WC, Bad, Zimmer. Balkon kann errichtet werden.
Kaufpreis => 99.900 €
Nettomiete => 327,54 + 58,8 € Küchenmiete = 4,6% Rendite
Unsere Auswahl an Anzeigen ist momentan sehr umfangreich und es ist...
Preisinformation
Verhandlungsbasis
Weitere Informationen
Stichworte
Wohnfläche: 32,33 m², Gesamtfläche: 32,33 m², Anzahl der Badezimmer: 1, Anzahl der separaten WCs: 1, Bundesland: Steiermark
Anbieter der Immobilie
Papst Immobilien GmbH
Grazer Straße 48, 8101 Gratkorn

Online-ID: 2mp4x55
Referenznummer: O2200166858
Finde Angebote wie dieses
Günstige Immobilienfinanzierung einfach online berechnen
Persönliches Angebot berechnenWarum sehe ich diese Werbung? – Du siehst diese Werbung basierend auf Deiner Navigation auf unserer Website und der von Dir verwendeten Suchkriterien.
Diese Werbung wird bezahlt von durchblicker
Werbung melden
Hier geht es zu unserem Impressum, den Allgemeinen Geschäftsbedingungen, den Hinweisen zum Datenschutz und nutzungsbasierter Online-Werbung.