
Innviertler Gemeinnützige Wohnungs- und Siedlungsgenossenschaft reg. Gen.m.b.H.
Frau Rebecca Neißl
+43 ···
Nr. anzeigenPreise & Kosten
inkl. Betriebskosten
Kaution
760,00 €
Warum sehe ich diese Anzeige? – Du siehst diese Anzeige basierend auf Ihrer Navigation auf unserer Website und den Suchkriterien, die du verwendet hast.
Die Wohnung
Bezug
sofort
Wohnanlage
Energie & Heizung
Warum sehe ich diese Anzeige? – Du siehst diese Anzeige basierend auf Ihrer Navigation auf unserer Website und den Suchkriterien, die du verwendet hast.
Heizwärmebedarf (HWB)
68,90 kWh/(m²·a)
Gesamtenergieeffizienz (fGEE)
2,89
Weitere Energiedaten
Energieträger
Gas
Heizungsart
Zentralheizung
Details
Objektbeschreibung
Weitere Kosten: (einmalige Zahlung)
ISG Mitgliedschaft: 3 Geschäftsanteile á Euro 36,34 = Euro 109,02
Nach erfolgter Kündigung wird der Finanzierungsbetrag abzgl. 1 % Afa p.a. zurückgezahlt.
Preisinformation
Monatliche Vorschreibung vorbehaltlich einer Änderung per 1. Jänner 2026.
Alle Preise sind zzgl. MWST., Nettokaltmiete: 331,06 EUR
Weitere Informationen
Stichworte
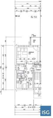
Stellplatz vorhanden, Fahrradraum, Gesamtfläche: 47,02 m², Anzahl Loggias: 1, Balkon-Terrassen-Fläche: 4,18 m², Bundesland: Oberösterreich, 3 Etagen, Wohnungsnr.: 3
Anbieter der Immobilie
Innviertler Gemeinnützige Wohnungs- und Siedlungsgenossenschaft reg. Gen.m.b.H.
Riedauer Straße 28, 4910 RIED/INNKREIS
Online-ID: 2mp5r55
Referenznummer: OBGC202509251520107326e2f30e348
Finde Angebote wie dieses
Hier geht es zu unserem Impressum, den Allgemeinen Geschäftsbedingungen, den Hinweisen zum Datenschutz und nutzungsbasierter Online-Werbung.