team19 Immobilien GmbH

Frau Silva Baghramian

Wohnen mit Klasse: Luxuriöse 5-Zimmer-Altbauwohnung mit Loggia - Erstbezug in 1030 Wien. - WOHNTRAUM

€ 799.900,96
Kaufpreis
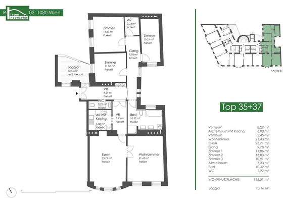
126,38 m²
Wohnfläche ca.
5
Zimmer
Finanzierung berechnen mit durchblicker

Der Anbieter dieses Objekts hat gegenüber der AVIV Germany GmbH als Betreiber dieses Online-Marktplatzes erklärt, nicht als Unternehmer im Sinne des § 1 KSchG zu handeln. Die im Verbraucherschutzrecht der Union verankerten Verbraucherrechte (insbesondere Informationspflichten und Rücktritts- bzw. Widerrufsrechte) finden auf den Vertrag zwischen dem Anbieter des Objekts und Ihnen (dem Interessenten) keine Anwendung.

Gewerblicher Anbieter

Der Anbieter dieses Objekts hat gegenüber der AVIV Germany GmbH als Betreiber dieses Online-Marktplatzes erklärt, als Unternehmer im Sinne des § 1 KSchG zu handeln.

AdresseRennweg 102
1030 Wien,Landstraße 
Auf Karte ansehen

Preise & Kosten

Kaufpreis € 799.900,96 Betriebskosten € 263,67 Preis/m² € 5.852,79

Provision für Käufer

3% des Kaufpreises zzgl. 20% USt.

Lage

Die Wohnung befindet sich in einer begehrten Lage des 3. Bezirks, nur wenige Schritte vom historischen Schloss Belvedere entfernt. Diese Lage vereint urbanes Lebensgefühl mit naturnahem Wohnen - ideal für alle, die Zentrumsnähe und Erholung im Grünen schätzen.
In fußläufiger Nähe befinden sich der idyllische...

Mehr anzeigen

Die Wohnung

Wohnungslage

4. Geschoss

Bezug

ab sofort

  • Bad mit Fenster, Wanne und Dusche, Gäste-WC
  • Loggia
  • barrierefrei, WG-geeignet
  • Böden: Estrich, Fliesenboden, Parkett
  • Zustand: renoviert / saniert
  • Weitere Räume: Abstellraum

Wohnanlage

  • Baujahr: 1910
  • Zustand: Altbau (bis 1945)
  • Personenaufzug

Energie & Heizung

Heizwärmebedarf (HWB)

C

71,50 kWh/(m²·a)

Gesamtenergieeffizienz (fGEE)

D

1,85

Weitere Energiedaten

Energieträger

Gas

Heizungsart

Fußbodenheizung, Zentralheizung

Details

Objektbeschreibung

EXKLUSIVE 5-ZIMMER-ALTBAUWOHNUNG MIT LOGGIA IN WUNDERSCHÖNEM JUGENDSTILHAUS - 1030 WIEN

Urbanes Lebensgefühl trifft auf ruhige Rückzugsoase - in dieser einzigartigen Altbauwohnung im beliebten 3. Bezirk erleben Sie das Beste aus zwei Welten. Die rund 126 m² große, komplett sanierte Wohnung befindet sich im 4. Liftstock...

Mehr anzeigen

Weitere Informationen

Stichworte
Nord-Balkon/Terrasse, Nutzfläche: 136,56 m², Gesamtfläche: 136,66 m², Freifläche: 10,17 m², Anzahl der Badezimmer: 1, Anzahl der separaten WCs: 2, Anzahl Loggias: 1, Balkon-Terrassen-Fläche: 10,16 m², Kellerfläche: 3,37 m², Bundesland: Wien, 7 Etagen, Wohnungsnr.: 35-37, modernisiert: 2019

Anbieter der Immobilie

Partner

team19 Immobilien GmbH

im Durchschnitt  4,20  Sterne
(bei 2 Bewertungen)

Handelskai 94-96/44. Stock, 1200 BRIGITTENAU

user

Frau Silva Baghramian

Dein Ansprechpartner

Anbieter-Website Anbieter-Profil Anbieter-Impressum

Online-ID: 2mp5v5k

Referenznummer: OBGC202512031836058677722b82110

Finde Angebote wie dieses

imageimageimage

Günstige Immobilienfinanzierung einfach online berechnen

Persönliches Angebot berechnen

Hier geht es zu unserem Impressum, den Allgemeinen Geschäftsbedingungen, den Hinweisen zum Datenschutz und nutzungsbasierter Online-Werbung.