
Krams Immobilien GmbH
Frau Angelika Ade
004 ···
Nr. anzeigenPreise & Kosten
Provision für Käufer
3,57 % Käuferprovision inkl. Mehrwertsteuer.
Lage
Metzingen - eine weltoffene Stadt mit Rundum-Wohlfühlcharakter.
Mit ca. 22.000 Einwohnern, ist Metzingen die zweitgrößte Stadt des Landkreises Reutlingen und Teil des Biosphärengebiets Schwäbische Alb. Überregional bekannt ist Metzingen vor allem für seine großartige Outletcity, welche jedes modebegeisterte Herz höher...
Das Haus
Kategorie
Einfamilienhaus
Baujahr
1972
Bezug
kurzfristig
Energie & Heizung
Warum sehe ich diese Anzeige? – Du siehst diese Anzeige basierend auf Ihrer Navigation auf unserer Website und den Suchkriterien, die du verwendet hast.
Energieausweistyp
Verbrauchsausweis
Gebäudetyp
Wohngebäude
Baujahr laut Energieausweis
2006
Wesentliche Energieträger
ERDGAS_LEICHT
Gültigkeit
bis 14.11.2035
Effizienzklasse
G
Endenergieverbrauch
248,80 kWh/(m²·a)
Weitere Energiedaten
Energieträger
Gas
Heizungsart
Zentralheizung
Details
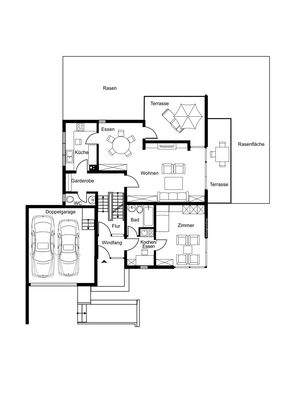
Objektbeschreibung
Willkommen in einem Haus mit außergewöhnlicher Architektur.
Über die Außentreppe ist über wenige Stufen der Eingangsbereich erreicht. Auf der ersten Ebene liegen - aufgrund der leichten Hanglage - die großzügigen Nebenräume und eine kleine Einliegerwohnung. Sie ist mit einem Duschbad und einer Küchenzeile ausgestattet...
Ausstattung
- Fliesenböden Wohnbereich
- Teppichböden Schlafräume
- Massive Treppen mit Natursteinbelag ins Erdgeschoss
und mit Teppichbelag ins Dachgeschoss
- weiß gestrichenes sichtbares Mauerwerk im Wohnbereich und im Treppenhaus
- überwiegend Holzdecken
- UG und EG in Massivbauweise
- DG teilweise in...
Preisinformation
1 Garagenstellplatz
Weitere Informationen
Stichworte
Nutzfläche: 100,73 m², vermietbare Fläche: 27,48 m², Anzahl der Badezimmer: 2, Anzahl Terrassen: 1, 3 Etagen
Anbieter der Immobilie
Krams Immobilien GmbH
Kaiserpassage 9, 72764 Reutlingen
Online-ID: 2mp755g
Referenznummer: 8073
Finde Angebote wie dieses
Hier geht es zu unserem Impressum, den Allgemeinen Geschäftsbedingungen, den Hinweisen zum Datenschutz und nutzungsbasierter Online-Werbung.