

EDE INVEST GmbH & Co. KG
Herr Marius Stumpf
+49 ···
Nr. anzeigenPreise & Kosten
Provision für Käufer
2,50 % inkl. MwSt. (2,10 % netto) inkl. MwSt.
Lage
Die Immobilie befindet sich in Waldperlach, einem charmanten Viertel im Südosten Münchens, das die Vorzüge urbaner Infrastruktur mit der Ruhe naturnaher Umgebung verbindet.
Das Umfeld besticht durch eine harmonische Mischung aus gewachsenen Wohnsiedlungen, modernen Anlagen und viel Grün - ideal für Familien...
Das Haus
Kategorie
Doppelhaushälfte
Baujahr
1981
Bezug
sofort
Energie & Heizung
Warum sehe ich diese Anzeige? – Du siehst diese Anzeige basierend auf Ihrer Navigation auf unserer Website und den Suchkriterien, die du verwendet hast.
Weitere Energiedaten
Heizungsart
Fußbodenheizung
Details
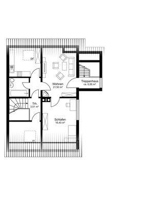
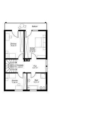
Objektbeschreibung
Diese großzügige Doppelhaushälfte in München-Waldperlach überzeugt mit ca. 215 m² Wohnfläche und einer familienfreundlichen Aufteilung in sechs Zimmer. Hochwertige Materialien und eine gehobene Ausstattung schaffen ein komfortables Wohnambiente, das durch die ruhige Lage ideal ergänzt wird.
Im Erdgeschoss besticht der...
Ausstattung
- Großzügige Raumaufteilung
- Hochwertige Materialien
- Luxuriöse Bäder
- Ruhige Lage
- Südausrichtung
- Keramik-Fliesen
- Parkettboden
- Fußbodenheizung
- Balkon
- Garten
- Terrasse
- Einbauküche
- Einbauschränke
-...
Weitere Informationen
Sonstiges
Alle in diesem Exposé verwendeten Angaben beruhen auf Informationen von Dritten (z.B. Eigentümer, Hausverwaltung, etc.) und daher freibleibend und ohne jegliche Gewähr. Zahlenangaben sind immer als ca-Angaben zu verstehen. Irrtum, Änderungen, Zwischenverkauf oder Zwischenvermietung bleiben vorbehalten. Die...
Anbieter der Immobilie
EDE INVEST GmbH & Co. KG
Bavariaring 18, 80336 München

Online-ID: 2mp955g
Referenznummer: 6140_3
Finde Angebote wie dieses
Hier geht es zu unserem Impressum, den Allgemeinen Geschäftsbedingungen, den Hinweisen zum Datenschutz und nutzungsbasierter Online-Werbung.