
WOGE
Frau Barbara Fehr
004 ···
Nr. anzeigenPreise & Kosten
inkl. Betriebskosten
Kaution
3 Bruttomonatsmieten
Warum sehe ich diese Anzeige? – Du siehst diese Anzeige basierend auf Ihrer Navigation auf unserer Website und den Suchkriterien, die du verwendet hast.
Die Wohnung
Kategorie
Terrassenwohnung
Wohnungslage
1. Geschoss
Bezug
ab 01.03.2026 möglich
Wohnanlage
Energie & Heizung
Warum sehe ich diese Anzeige? – Du siehst diese Anzeige basierend auf Ihrer Navigation auf unserer Website und den Suchkriterien, die du verwendet hast.
Heizwärmebedarf (HWB)
38,00 kWh/(m²·a)
Gesamtenergieeffizienz (fGEE)
0,87
Weitere Energiedaten
Energieträger
Erdwärme
Heizungsart
Fußbodenheizung
Details
Weitere Informationen
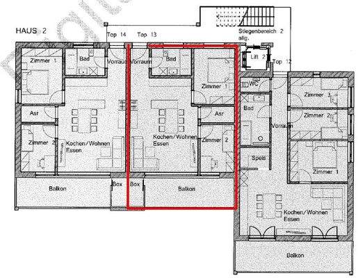
moderne 3 Zimmer Wohnung
Feldkirch - Rankweil - Martinsfeld!
Diese moderne helle 3 Zimmer Mietwohnung verfügt über einen Balkon von ca.14,15 m² sowie ein Kellerabteil. Die Wohnung besticht durch ihre helle, moderne und einladende Atmosphäre. Der offene Grundriss schafft ein großzügiges Wohngefühl, während der Balkon...
Anbieter der Immobilie
WOGE
Saalbaugasse 2, 6800 FELDKIRCH
Online-ID: 2mpaj5q
Finde Angebote wie dieses
Hier geht es zu unserem Impressum, den Allgemeinen Geschäftsbedingungen, den Hinweisen zum Datenschutz und nutzungsbasierter Online-Werbung.