
ohne-makler.net - Immobilien selbst vermarkten
Privat von Dieter Steiger
+41 ···
Nr. anzeigenPreise & Kosten
Provision für Käufer
provisionsfrei
Lage
Die Immobilie liegt in der **Bürgermeister-Regitz-Straße 61, 66539 Neunkirchen-Wellesweiler**.
Gute Anbindung an ÖPNV, Einkaufsmöglichkeiten und Schulen in der Nähe.
Infrastruktur (im Umkreis von 5 km):
Apotheke, Lebensmittel-Discount, Allgemeinmediziner, Kindergarten, Grundschule, Hauptschule, Öffentliche...
Das Haus
Kategorie
Mehrfamilienhaus
Baujahr
1960
Bezug
sofort
Energie & Heizung
Warum sehe ich diese Anzeige? – Du siehst diese Anzeige basierend auf Ihrer Navigation auf unserer Website und den Suchkriterien, die du verwendet hast.
Energieausweistyp
Verbrauchsausweis
Gebäudetyp
Wohngebäude
Endenergieverbrauch
319,00 kWh/(m²·a)
Weitere Energiedaten
Energieträger
Gas
Heizungsart
Zentralheizung
Details
Objektbeschreibung
Dieses frisch renovierte **4-Familienhaus** in Neunkirchen-Wellesweiler bietet sowohl Kapitalanlegern als auch Eigennutzern vielfältige Möglichkeiten.
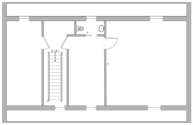
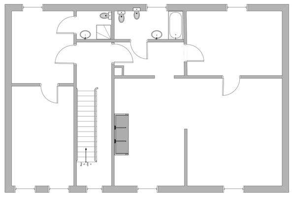
- **4 Wohnungen**: je Geschoss eine 2-Zimmer-Wohnung (ca. 32 m²) und eine 3,5-Zimmer-Wohnung (ca. 70 m²)
- **Spitzboden**: zusätzlich zwei ausgebaute Zimmer...
Ausstattung
Garten, Keller, Vollbad, Duschbad, Einbauküche, Laminat
Bemerkungen:
- frisch renoviert (Wohnungen, Keller, Garagen)
- sofort bezugsbereit
- 2 Garagen, Hofzufahrt, Gestaltungspotenzial für weitere Parkplätze
- Keller mit Nebenräumen, Heiz- und Waschraum
Preisinformation
3 Stellplätze
2 Garagenstellplätze
Weitere Informationen
Sonstiges
Heizungsart: Zentralheizung
Energieträger: Gas
- **Verkauf von privat, provisionsfrei** (keine Käuferprovision!)
- Makleranfragen sind ausdrücklich nicht erwünscht.
Makleranfragen nicht erwünscht. Nach § 7 UWG sind unaufgeforderte Kontaktaufnahmen durch Makler ohne ausdrückliche Einwilligung...
Anbieter der Immobilie
ohne-makler.net - Immobilien selbst vermarkten
Humboldtstr. 25 A, 21509 Glinde
Online-ID: 2mpcn5z
Referenznummer: 294215
Finde Angebote wie dieses
Hier geht es zu unserem Impressum, den Allgemeinen Geschäftsbedingungen, den Hinweisen zum Datenschutz und nutzungsbasierter Online-Werbung.