
E + V Hamburg Immobilien GmbH
Team Engel & Völkers Hamburg Alster
+49 ···
Nr. anzeigenPreise & Kosten
Provision für Käufer
3.57 % inkl. gesetzl. MwSt. Weitere Informationen siehe Provisionshinweis.
Lage
Diese Immobilie präsentiert sich in einer zentral und ruhig
gelegenen Wohnstraße in Barmbek-Süd an der Grenze zu
Uhlenhorst. Die Hamburger Außenalster mit ihren
weitläufigen Grünanlagen ist fußläufig zu erreichen.
Einkaufsmöglichkeiten für den täglichen Bedarf sowie
Restaurants, Cafés und zahlreiche kleine...
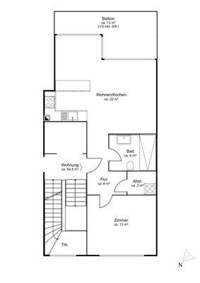
Die Wohnung
Bezug
nach Vereinbarung
Wohnanlage
Energie & Heizung
Warum sehe ich diese Anzeige? – Du siehst diese Anzeige basierend auf Ihrer Navigation auf unserer Website und den Suchkriterien, die du verwendet hast.
Energieausweistyp
Bedarfsausweis
Gebäudetyp
Wohngebäude
Baujahr laut Energieausweis
2016
Gültigkeit
seit 05.02.2025
Effizienzklasse
A
Endenergiebedarf
30,20 kWh/(m²·a)
Weitere Energiedaten
Energieträger
Fernwärme
Heizungsart
Fußbodenheizung
Details
Objektbeschreibung
- Kompakter, optimal geschnittener Grundriss mit
zwei Zimmern auf ca. 65 m² Wohnfläche
- Tiefgaragenstellplatz für 45.000 EUR mit Wallbox-Option
- Helles Wohnzimmer mit viel Tageslicht dank
großen Fensterfronten
- Ca. 13 m² großes Schlafzimmer mit bodentiefen
Fenstern und viel Tageslicht
- Großzügiger...
Preisinformation
1 Stellplatz, Kaufpreis: 45.000,00 EUR
Weitere Informationen
Provisionshinweis
3.57 % inkl. gesetzl. MwSt.
Sie sind selbst Eigentümer und möchten erfahren, wie sich der Wert Ihrer eigenen Immobilie entwickelt
hat? Gerne erstellen wir für Sie eine professionelle Marktbewertung und unterstützen Sie kompetent und
zuverlässig beim erfolgreichen Verkauf Ihrer Immobilie. Für...
Anbieter der Immobilie
E + V Hamburg Immobilien GmbH
Stadthausbrücke 5, 20355 Hamburg
Online-ID: 2mpcz5q
Referenznummer: I-047IUY-W-047IUY
Finde Angebote wie dieses
Hier geht es zu unserem Impressum, den Allgemeinen Geschäftsbedingungen, den Hinweisen zum Datenschutz und nutzungsbasierter Online-Werbung.