KREATIV GmbH Immobilienservice & Hausverwaltung

Frau Madeleine Gruhne

Moderne 2-Raum Wohnung in ruhiger Lage mit Balkon

€ 414
Kaltmiete zzgl. NK
69 m²
Wohnfläche ca.
2
Zimmer

Der Anbieter dieses Objekts hat gegenüber der AVIV Germany GmbH als Betreiber dieses Online-Marktplatzes erklärt, nicht als Unternehmer im Sinne des § 1 KSchG zu handeln. Die im Verbraucherschutzrecht der Union verankerten Verbraucherrechte (insbesondere Informationspflichten und Rücktritts- bzw. Widerrufsrechte) finden auf den Vertrag zwischen dem Anbieter des Objekts und Ihnen (dem Interessenten) keine Anwendung.

Gewerblicher Anbieter

Der Anbieter dieses Objekts hat gegenüber der AVIV Germany GmbH als Betreiber dieses Online-Marktplatzes erklärt, als Unternehmer im Sinne des § 1 KSchG zu handeln.

AdresseSohlener Str. 8
39122 Magdeburg 
(Westerhüsen)
Auf Karte ansehen

Preise & Kosten

Kaltmiete € 414 Nebenkosten € 103,50 Heizkosten € 103,50 Warmmiete € 621

Kaution

1.242,00

Lage

Westerhüsen bietet eine idyllische und ruhige Wohnlage mit viel Grün und Natur, ideal für Familien und Naturliebhaber. Mit der Straßenbahnlinie 2 gelangen Sie ohne Umsteigen in die Innenstadt. Kindergarten, Grundschule und andere Bildungseinrichtungen sind in 5 Minuten zu Fuß erreichbar.

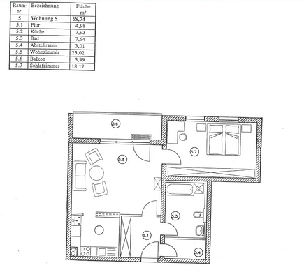
Die Wohnung

Wohnungslage

1. Geschoss

Bezug

sofort

Derzeitige Nutzung

frei

  • Bad mit Wanne
  • Balkon
  • offene Küche
  • Böden: Fliesenboden, Laminat
  • Fenster: Kunststofffenster
  • Weitere Räume: Abstellraum

Wohnanlage

  • Baujahr: 1996
  • 1 Stellplatz
  • Serviceleistungen: Reinigungsservice

Energie & Heizung

A+
A
B
C
D
E
F
G
H
0 25 50 75 100 125 150 175 200 225 250 +

Energieausweistyp

Verbrauchsausweis

Gebäudetyp

Wohngebäude

Baujahr laut Energieausweis

1996

Wesentliche Energieträger

Erdgas E

Gültigkeit

25.03.2025 bis 24.03.2035

Effizienzklasse

C

Endenergieverbrauch

75,97 kWh/(m²·a)

Weitere Energiedaten

Energieträger

Gas

Heizungsart

Zentralheizung

Details

Objektbeschreibung

2 Zimmer
Küche, Bad, Balkon

Weitere Informationen

Besichtigungstermine
Besichtigungstermine
telefonisch unter der Rufnummer 0391- 6210409
Bürozeiten:
Montag - Freitag von 9.00 - 12.00 Uhr
Dienstag und Donnerstag von 13.00 - 15.30 Uhr

Stichworte
Serviceleistungen: Hausmeister

Dokumente

file_pdfGrundriss 1. OG mi.pdfangle_rightfile_pdfEnergieausweis bis 2035.pdfangle_right

Anbieter der Immobilie

PartnerDiamond Partner

KREATIV GmbH Immobilienservice & Hausverwaltung

im Durchschnitt  4,20  Sterne
(bei 8 Bewertungen)

Richard-Dembny-Str. 20, 39116 Magdeburg

Geschäftszeiten
user

Frau Madeleine Gruhne

Dein Ansprechpartner

Anbieter-Profil Anbieter-Impressum

Online-ID: 2mpdq5g

Finde Angebote wie dieses

imageimageimage

Hier geht es zu unserem Impressum, den Allgemeinen Geschäftsbedingungen, den Hinweisen zum Datenschutz und nutzungsbasierter Online-Werbung.