

Bien Zenker Vertriebspartner Birgit Neumann
Frau Birgit Neumann
Kontaktiere den Anbieter schriftlich, es ist keine Telefonnummer hinterlegt.
Preise & Kosten
Provision für Käufer
provisionsfrei
Lage
Das Grundstück für dieses Hausprojekt befindet sich in Zella-Mehlis angenehm und ruhig gelegen. Einkaufsmöglichkeiten, soziale Einrichtungen und öffentlicher Verkehr sind ortsüblich erreichbar.
Doch nicht ganz Ihre Wunschlage? Das ist aber kein Problem. Wir sollten uns einfach über Ihre Wünsche unterhalten. Zurzeit...
Das Haus
Kategorie
Einfamilienhaus
Energie & Heizung
Warum sehe ich diese Anzeige? – Du siehst diese Anzeige basierend auf Ihrer Navigation auf unserer Website und den Suchkriterien, die du verwendet hast.
Weitere Energiedaten
Haustyp
KfW 55
Heizungsart
Luft-/Wasser-Wärmepumpe
Details
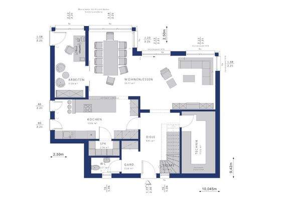
Objektbeschreibung
Unser Evolution 154 überzeugt wie alle Evolution Häuser mit Vielfalt und Individualität bei Architektur und Design.
Die großen Fenster und die klare Liniensprache verleihen diesem Haus sein elegant-modernes Gesicht. Unabhängig von Dachform, Designpaket und Fassadengestaltung als Putz- oder Klinkerfassade zeigt sich das...
Ausstattung
Wir erstellen Ihr Haus in bekannter Bien-Zenker Qualität, darin sind folgende Leistungen enthalten:
+ Alle zur Erstellung des Bauantrages notwendigen Architektenleistungen,
+ Ausführung als Effizienzhaus 55, nach Ihrer Wahl selbstverständlich auch als Effizienzhaus 40 oder 40 plus,
+ Inklusive...
Weitere Informationen
Sonstiges
Das Grundstück ist im obigen Preis eingerechnet, es wird ohne zusätzliche Provision an einen Bien-Zenker Bauherren bereitgestellt.
Zusätzliche Baunebenkosten müssen noch hinzugerechnet werden, hierüber beraten wir Sie gern.
Wir bieten Ihnen interessante Finanzierungsmöglichkeiten inklusive Beantragung aller...
Anbieter der Immobilie
Bien Zenker Vertriebspartner Birgit Neumann
Bei den Froschäckern 41, 99098 Erfurt

Frau Birgit Neumann
Dein Ansprechpartner
Kontaktiere den Anbieter schriftlich, es ist keine Telefonnummer hinterlegt.
Online-ID: 2mped5r
Referenznummer: 12211-29479
Finde Angebote wie dieses
Hier geht es zu unserem Impressum, den Allgemeinen Geschäftsbedingungen, den Hinweisen zum Datenschutz und nutzungsbasierter Online-Werbung.