

ORANGE Immobilienagentur
Frau Carina Angeli
004 ···
Nr. anzeigenPreise & Kosten
Provision für Käufer
provisionsfrei
Lage
Das VILSHAUS überzeugt durch seine zentrale Lage in Amberg, die urbanes Leben mit grüner Umgebung kombiniert. Einkaufsmöglichkeiten, Schulen, Kindergärten sowie Ärzte sind fußläufig erreichbar. Die historische Altstadt liegt nur wenige Gehminuten entfernt. Gleichzeitig profitieren Bewohner von einer ruhigen...
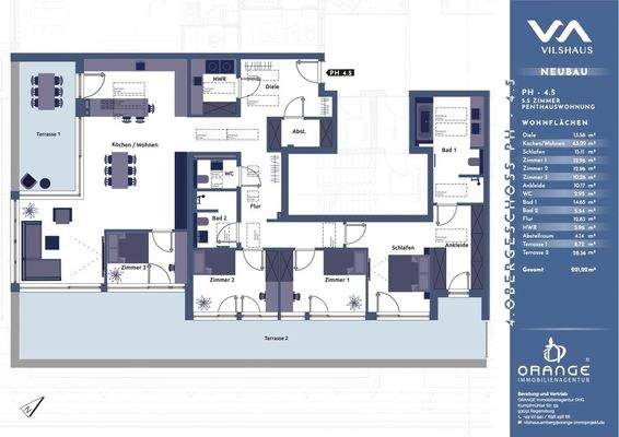
Die Wohnung
Kategorie
Penthouse
Bezug
31.08.2027
Wohnanlage
Energie & Heizung
Warum sehe ich diese Anzeige? – Du siehst diese Anzeige basierend auf Ihrer Navigation auf unserer Website und den Suchkriterien, die du verwendet hast.
Energieausweistyp
Bedarfsausweis
Gebäudetyp
Wohngebäude
Baujahr laut Energieausweis
2024
Wesentliche Energieträger
KWK_FOSSIL
Gültigkeit
bis 28.10.2034
Effizienzklasse
A+
Endenergiebedarf
16,00 kWh/(m²·a)
Weitere Energiedaten
Energieträger
Fernwärme
Haustyp
Holzhaus
Heizungsart
Fußbodenheizung
Details
Objektbeschreibung
In einer der begehrtesten Lagen Ambergs entsteht ein visionäres Wohnkonzept mit insgesamt 130 Eigentumswohnungen, welches modernes Design mit nachhaltiger Bauweise und hochwertiger Ausstattung verbindet. Das Projekt umfasst vom 1 Zimmer Appartment über 2 bis 3 Zimmer Wohnungen bis hin zu exklusiven Penthäusern mit...
Ausstattung
* energiesparender KfW 40 QNG Standard mit attraktiven Fördermöglichkeiten
* steuerliches Highlight: AfA bis zu 10% möglich
* Massivholzbauweise für ein gesundes Raumklima und maximale Nachhaltigkeit
* Kunststofffenster mit 3-Scheiben-Wärmeschutzverglasung
* elektrisch betriebene Raffstores für optimalen Sonnen-...
Preisinformation
2 Tiefgaragenstellplätze, Kaufpreis je: 39.000,00 EUR
Soll-Mieteinnahmen pro Jahr: 29.328,00 EUR
Weitere Informationen
Sonstiges
Gerne sind wir für weitere Fragen und Informationen unter Tel.: 0941 / 698 498 86 erreichbar.
Alle Angaben stammen vom Eigentümer, der Makler übernimmt hierfür keine Haftung.
Anfragen über die Immobilienportale werden nur mit vollständiger Adresse und Telefonnummer...
Anbieter der Immobilie
ORANGE Immobilienagentur
Kumpfmühler Str. 59, 93051 Regensburg

Online-ID: 2mped5z
Referenznummer: 300-KW-K.PH4.5
Finde Angebote wie dieses
Hier geht es zu unserem Impressum, den Allgemeinen Geschäftsbedingungen, den Hinweisen zum Datenschutz und nutzungsbasierter Online-Werbung.