
ohne-makler.net - Immobilien selbst vermarkten
Privat von Zahner
Kontaktiere den Anbieter schriftlich, es ist keine Telefonnummer hinterlegt.
Preise & Kosten
Provision für Käufer
provisionsfrei
Lage
Im Stadtteil Wunderburg findet man fußläufig Einkaufsmöglichkeiten, wie z.B. Bäckerei, Apotheke oder REWE, ebenso die Traditionsbrauereien Keesmann und Mahrs Bräu mit ihren Biergärten.
Die historischen Gebäude der ehemaligen Ulanenkasernen prägen die Wunderburg genauso wie die Pfarrkirche Maria Hilf.
Die Bamberger...
Die Wohnung
Wohnungslage
4. Geschoss (Dachgeschoss)
Bezug
nach Absprache
Derzeitige Nutzung
vermietet
Wohnanlage
Energie & Heizung
Warum sehe ich diese Anzeige? – Du siehst diese Anzeige basierend auf Ihrer Navigation auf unserer Website und den Suchkriterien, die du verwendet hast.
Energieausweistyp
Verbrauchsausweis
Gebäudetyp
Wohngebäude
Effizienzklasse
D
Endenergieverbrauch
107,00 kWh/(m²·a)
Weitere Energiedaten
Energieträger
Gas
Heizungsart
Zentralheizung
Details
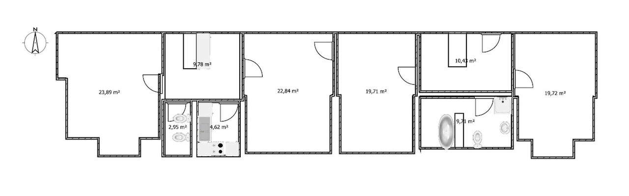
Objektbeschreibung
Die attraktive DG-Wohnung befindet sich in einem historischen Gebäude der ehemaligen Ulanenkaserne. Die ruhige Wohnung liegt in der 4. Etage und bietet einen unvergleichlichen Blick über Bamberg. Die Wohnung ist auf der ganzen Länge zur Hofseite, abgewandt von der Straße, ausgerichtet.
Die charmante Wohnung (ca. 125 qm)...
Ausstattung
Keller, Vollbad, Einbauküche, Gäste-WC, Laminat
Bemerkungen:
Die Einbauküche ist im Kaufpreis enthalten.
Weitere Informationen
Sonstiges
Heizungsart: Zentralheizung
Energieträger: Gas
Die Wohnung ist derzeit an zuverlässige Mieter vermietet. Die monatlichen Mieteinnahmen liegen aktuell bei 820 € Kaltmiete.
Besichtigungen sind nach Absprache mit den jetzigen Mietern möglich.
Die Wohnung wird über eine Gaszentralheizung beheizt...
Anbieter der Immobilie
ohne-makler.net - Immobilien selbst vermarkten
Humboldtstr. 25 A, 21509 Glinde
Privat von Zahner
Dein Ansprechpartner
Kontaktiere den Anbieter schriftlich, es ist keine Telefonnummer hinterlegt.
Online-ID: 2mpf858
Referenznummer: 405360
Finde Angebote wie dieses
Hier geht es zu unserem Impressum, den Allgemeinen Geschäftsbedingungen, den Hinweisen zum Datenschutz und nutzungsbasierter Online-Werbung.