
ohne-makler.net - Immobilien selbst vermarkten
Privat von L:
Kontaktiere den Anbieter schriftlich, es ist keine Telefonnummer hinterlegt.
Preise & Kosten
Provision für Käufer
provisionsfrei
Das Haus
Kategorie
Reihenmittelhaus
Baujahr
2004
Bezug
sofort
Details
Objektbeschreibung
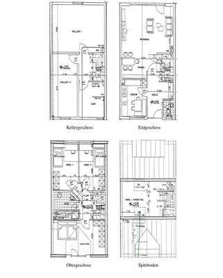
Diese Immobilie wurde 2004 in massiver Bauweise auf einem 141 m² großen Grundstück errichtet. Das Haus befindet sich in beliebter Wohnlage von Troisdorf-Bergheim in einem verkehrsberuhigten Wohngebiet.
Die Immobilie bietet mit ca. 122 m² Wohnfläche genug Platz für eine Familie.
- Die Immobilie ist sofort...
Ausstattung
Bemerkungen:
Massive Bauweise
ca. 141 m² Grundstück
ca. 122 m² Wohnfläche
Gasheizung
Überdachte Terrasse
Garage
Preisinformation
2 Stellplätze
1 Garagenstellplatz
Weitere Informationen
Sonstiges
Energieausweis nicht vorhanden
- Provisionsfrei
- Eine Außenbesichtigung ist jederzeit möglich
- Christine-Siegberg-Straße 3, 53844 Troisdorf-Bergheim
- Energieausweis in Erstellung
- Für Fragen Tel.: 0174 73 96 191
Makleranfragen nicht erwünscht. Nach § 7 UWG sind unaufgeforderte...
Dokumente
Anbieter der Immobilie
ohne-makler.net - Immobilien selbst vermarkten
Humboldtstr. 25 A, 21509 Glinde
Privat von L:
Dein Ansprechpartner
Kontaktiere den Anbieter schriftlich, es ist keine Telefonnummer hinterlegt.
Online-ID: 2mpfb5s
Referenznummer: 413849
Finde Angebote wie dieses
Hier geht es zu unserem Impressum, den Allgemeinen Geschäftsbedingungen, den Hinweisen zum Datenschutz und nutzungsbasierter Online-Werbung.