

Gruttmann Immobilien GmbH
Frau Britta C. Gruttmann
030 ···
Nr. anzeigenPreise & Kosten
Provision für Käufer
Gemäß der gesetzlichen Regelung zur Teilung der Maklercourtage beträgt die Provision 3,57% des Kaufpreises inklusive 19% MwSt. jeweils in gleicher Höhe für die Verkäuferseite sowie für die Käuferseite.
Lage
Wittenau ist ein Ortsteil im Bezirk Reinickendorf von Berlin und zeichnet sich durch eine vorstädtisch niedrigere Bebauung aus – im Gegensatz zum südlich angrenzenden Ortsteil Wedding mit seinen Mietskasernenvierteln im Innenstadtbezirk Mitte.
Im Osten grenzt Wittenau an den Bezirk Pankow, insbesondere an die Ortsteile...
Die Wohnung
Bezug
nach Vereinbarung
Derzeitige Nutzung
frei
Wohnanlage
Energie & Heizung
Warum sehe ich diese Anzeige? – Du siehst diese Anzeige basierend auf Ihrer Navigation auf unserer Website und den Suchkriterien, die du verwendet hast.
Energieausweistyp
Bedarfsausweis
Gebäudetyp
Wohngebäude
Baujahr laut Energieausweis
1983
Wesentliche Energieträger
Heizöl
Gültigkeit
05.08.2025 bis 04.08.2035
Effizienzklasse
F
Endenergiebedarf
192,00 kWh/(m²·a)
Weitere Energiedaten
Energieträger
Öl
Heizungsart
Zentralheizung
Details
Objektbeschreibung
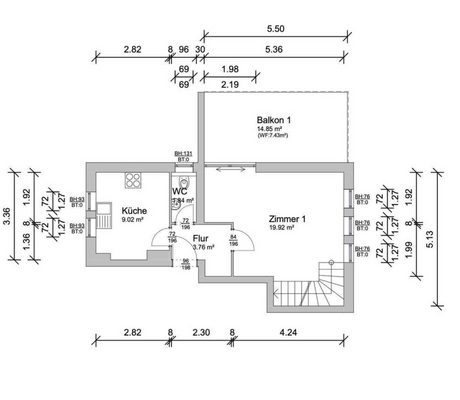
Das Gebäude wurde 1983 errichtet und beinhaltet drei Wohneinheiten. Die Wohnung befindet sich im Obergeschoss sowie im Dachgeschoss und ist bequem über das Treppenhaus zugänglich .
Die Wohnfläche von ca. 112,44 m² verteilt sich auf zwei Ebenen.
Die untere Ebene umfasst...
Anbieter der Immobilie

Online-ID: 2mpfl5x
Referenznummer: VK-25307 p
Finde Angebote wie dieses
Hier geht es zu unserem Impressum, den Allgemeinen Geschäftsbedingungen, den Hinweisen zum Datenschutz und nutzungsbasierter Online-Werbung.